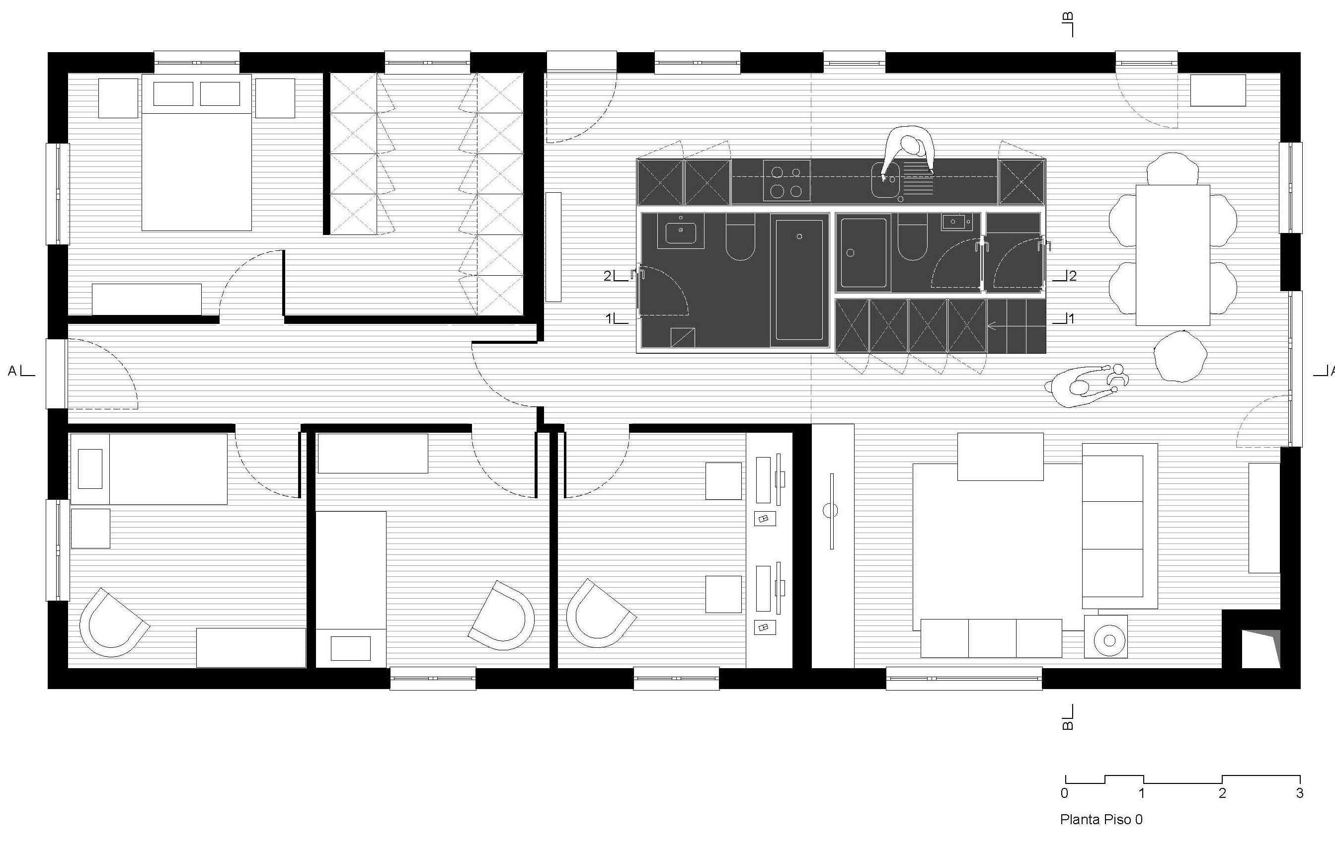
15/17 Images A Barn House Turned Into a Bright Contemporary Home in Monte Real, Portugal by Ines Brandao (15)