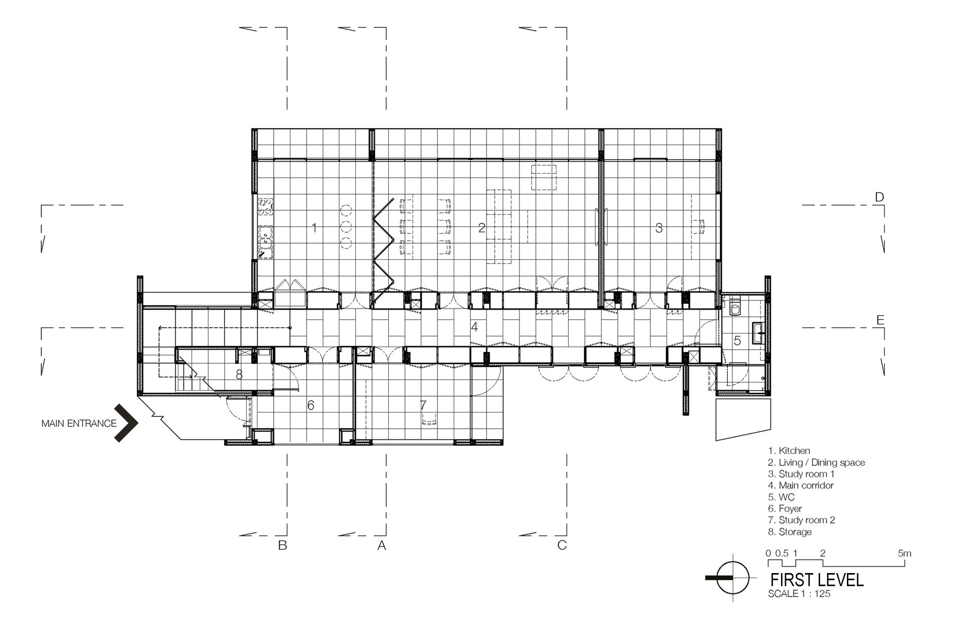
24/35 Images A Luminous Contemporary Home with Natural Light and Ventilation in Thailand by Integrated Field (24)