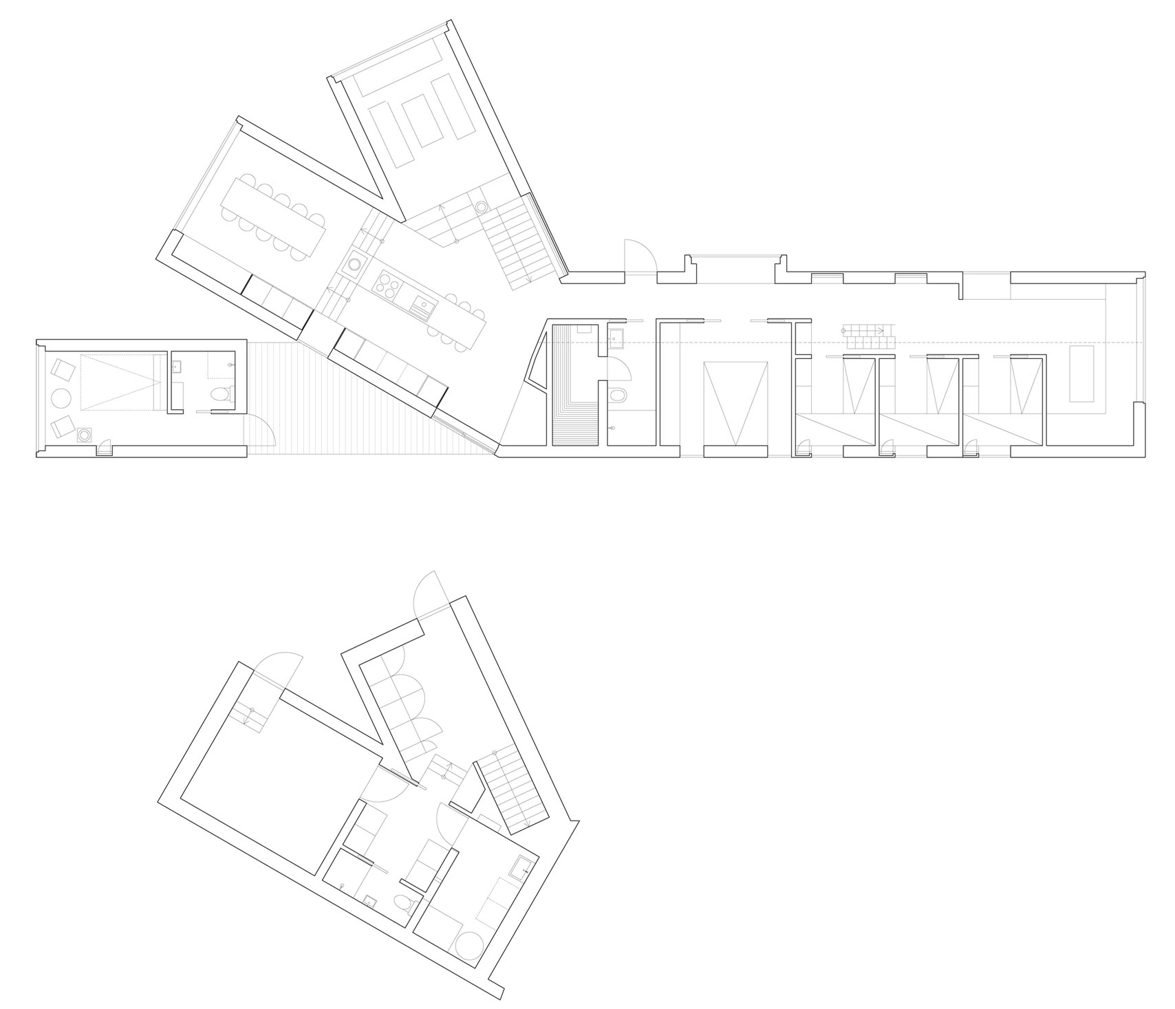
23/28 Images A Beautiful Mountain Home with Unique Character in Buskerud, Norway by Reiulf Ramstad Arkitekter (23)