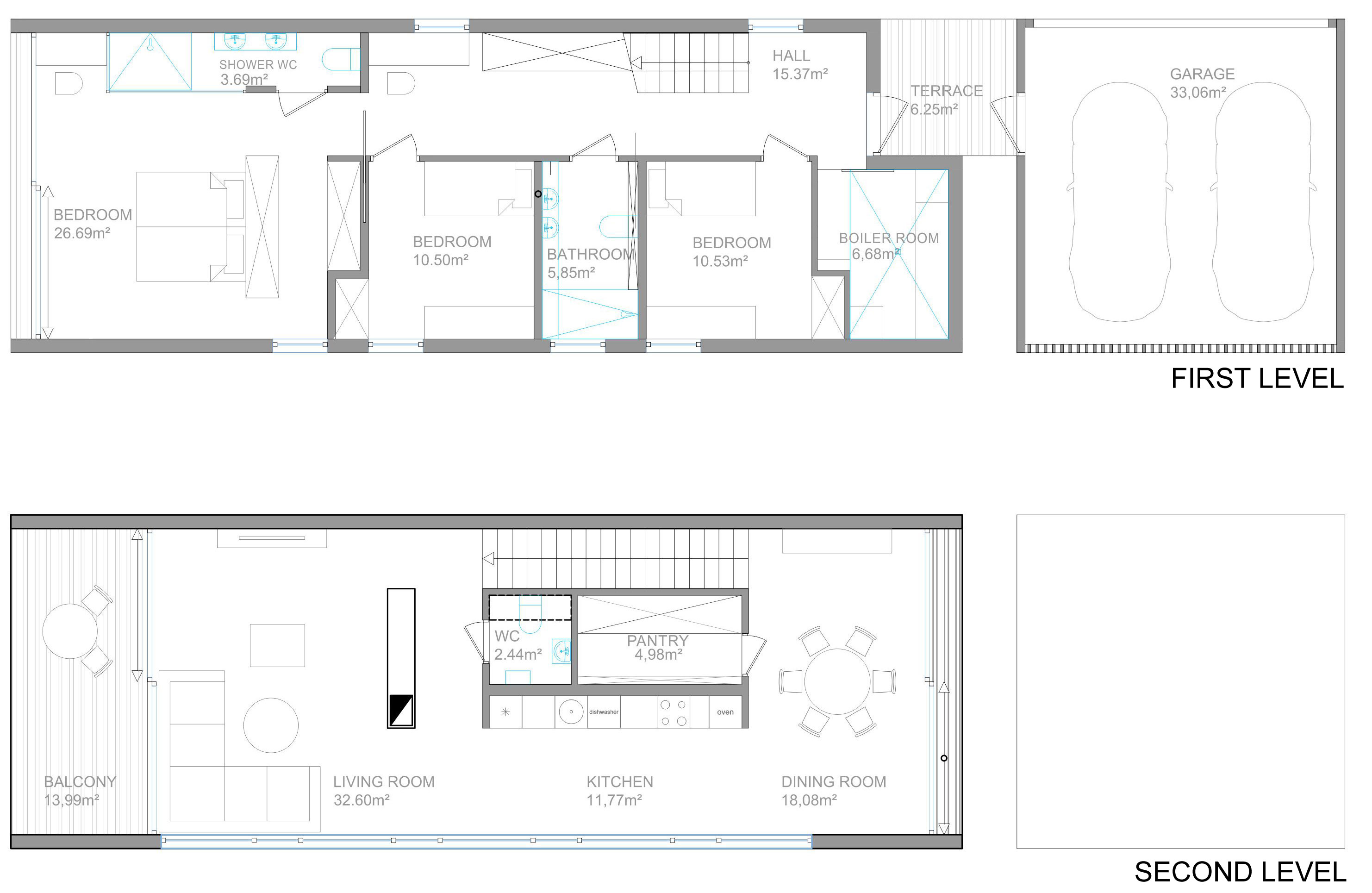
33/34 Images A Sophisticated Contemporary Home with Bright Interiors in Trondheim, Norway by KKDESIGN (33)