Résidence au Bic by NatureHumaine
In the Rimouski region, close to the Bic National Park, clients are owners of a small house located on the heights of the village they desire extend while retaining a trace of its presence. Their changing needs lead to completely transform the original house.
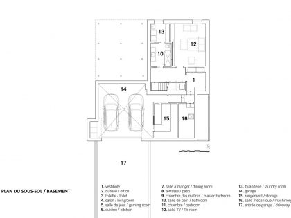
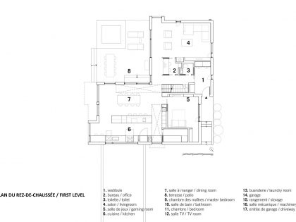
In a L, two volumes of wood and steel are juxtaposed to the existing volume coated bricks, now contains the entry and living room. The first volume host the kitchen on the ground floor.
The second includes the bedrooms and bathrooms upstairs. South side, the two overlapping boxes advance towards the forest edge allowing to arrange a terrace garden. At the junction of three boxes, flooded areas of light are created by the double height volumes.
Structuring the internal space, they offer extensive vertical frames on the landscape. Inside, a palette composed of gray, black and blue connected by cedar wood elements composes a visual and geometric continuity between the living spaces.
Photos courtesy of NatureHumaine & Adrien Williams
View more: A Warm and Spacious House with Plenty of Natural Light in Dak Lak Province, Vietnam
Related: A Luxurious and Sunny Contemporary House in Hallandale Beach
Here: A Bright Modern Mountain Home Drenched in Rustic Décor in Park City, Utah
Read also: A Stylish and Eco-Friendly Home in a Tropical Rainforest of Queensland
Next: A Stunning House of Folded Concrete and Wooden Louvers in Vadodara, India
Check out: A Playful and Modern Wooden Home Packed with Elegant Interiors in Brussels, Belgium












