Archives
November 2022
October 2022
September 2022
August 2022
October 2020
September 2020
August 2020
July 2020
June 2020
May 2020
Categories
Home
Dream Homes
Interior Design
House
Apartments
Public Space
Resort Residence
Selected Work
Dream Homes
Interior Design
Modern Interior Design
Contemporary Interior Design
Futuristic Interior Design
Luxury Interior Design
Industrial Interior Design
Transitional Interior Design
Minimalist Interior Design
Scandinavian Interior Design
Mid-Century Interior Design
House
Modern House
Contemporary House
Concrete House
Cliffside House
Beach House
Waterfront House
Mid-Century House
Cantilever House
Shipping Container House
Desert House
Church Conversion
Scandinavian House
Apartments
Small Apartment
Modern Apartment
Contemporary Apartment
Duplex Apartment
Penthouse
Loft
Warehouse Conversion
Selected Work
More
Living Room
Kitchen
Dining Room
Bedroom
Bathroom
Kids Room
Study Room
Concrete Walls
Glass Walls
Brick Walls
Stone Walls
Staircase
Lighting
House Plans
Landscaping
Swimming Pool
Terrace
Submit Work
Home Design
Log in
Search for:
Home
»
House
»
A Contemporary Home Combines Wood and Steel Panelling in Rimouski
»
lz4457r
A Contemporary Home Combines Wood and Steel Panelling in Rimouski
Back to gallery
Previous
Next
16/17 Images
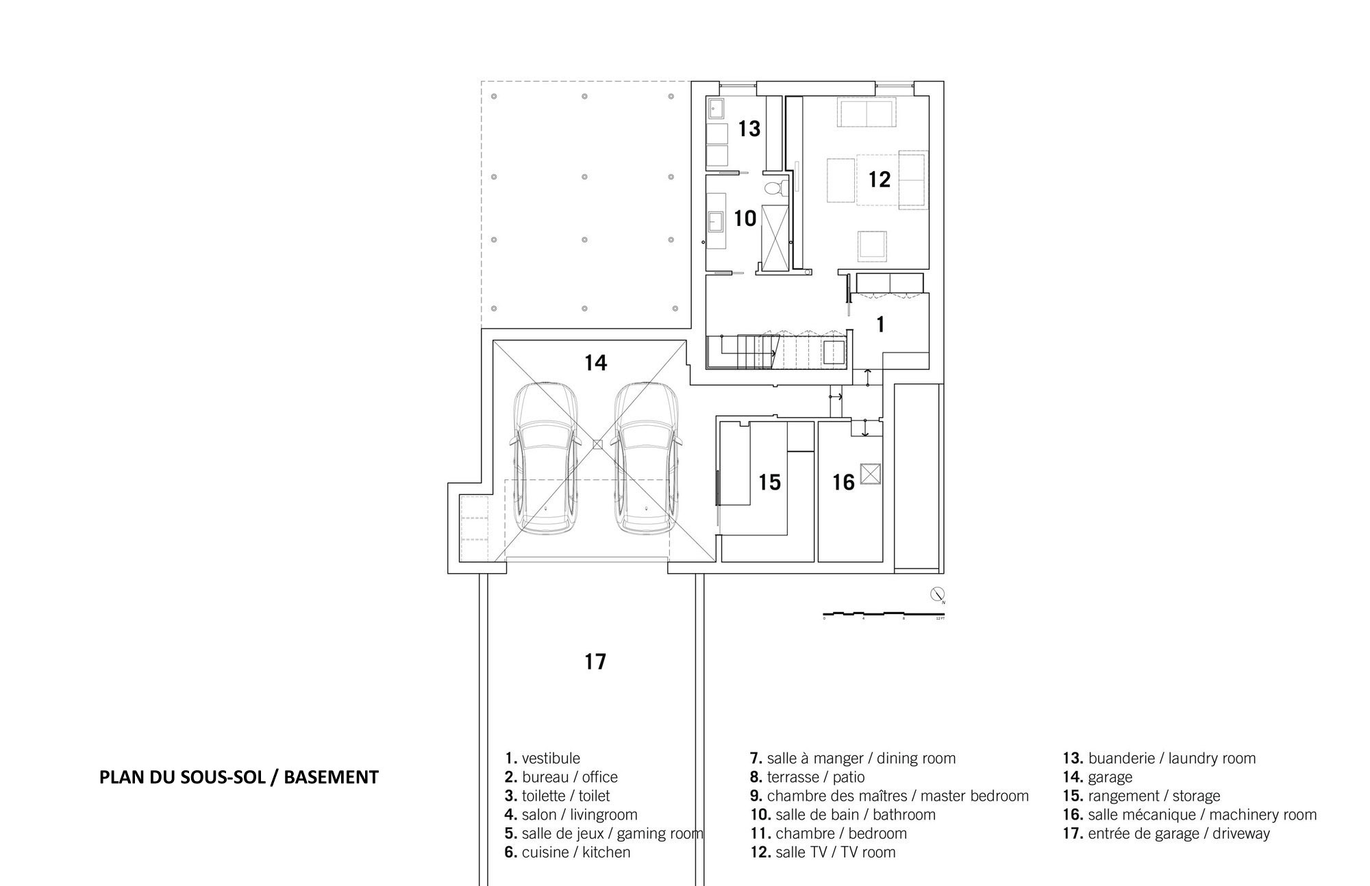
A Contemporary Home Combines Wood and Steel Panelling in Rimouski by NatureHumaine (16)
You Might Also Enjoy
House
Before/After
An Old Historic House Turned Into a Bright and Airy Modern Home in Toronto
House
Spiral Staircase
A Stylish Contemporary Home with Spiral Staircase in Rome, Italy
House
Staircase
A Simple and Elegant House with Spectacular 360 Degree Views in Charlevoix
House
Gym
An Elegant Contemporary Home for a Couple with Three Children in Treviso
House
Dining Room
A Cozy and Bright Modern House with Two Twisting Staircases in Sapporo, Japan
House
Bookshelf
A Luminous Hillside Home with Spectacular Views in Castel, Guernsey
House
Staircase
A Beautiful Contemporary House Surrounded by Nature on Three Sides in Aarhus, Denmark
House
Wall Decor
A Stunning and Elegant Contemporary House with Beautiful Landscape in South Mississauga