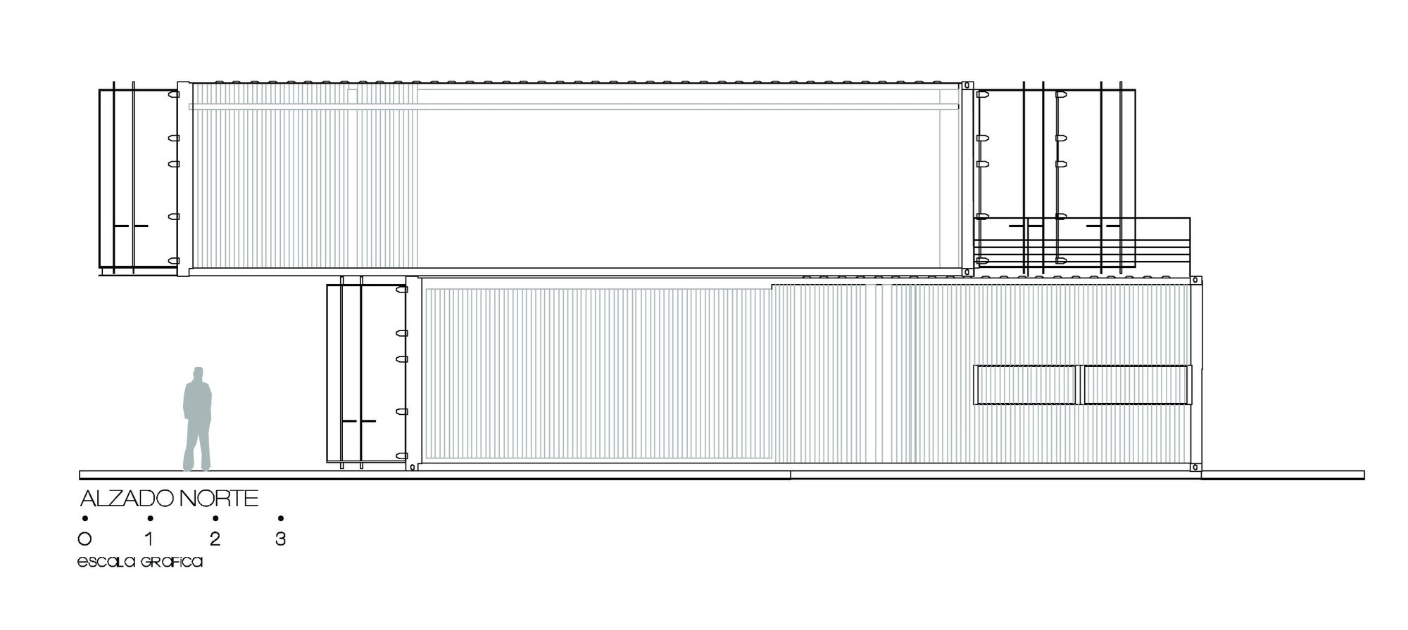
A Stylish Contemporary House Made of Four Shipping Containers in the Primavera Forest

A Stylish Contemporary House Made of Four Shipping Containers in the Primavera Forest by S+ Diseño (23)
23/26 Images