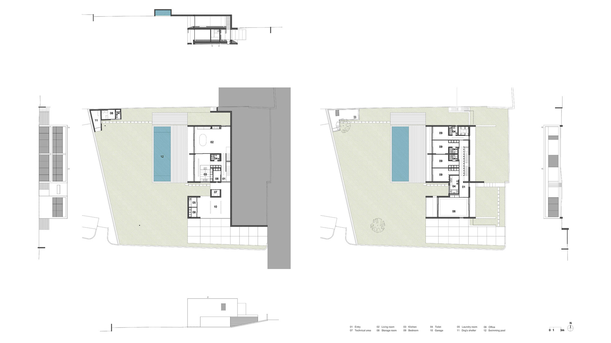
26/41 Images A Contemporary House with a Minimalist Decor Done in White by Raulino Silva Arquitecto (26)