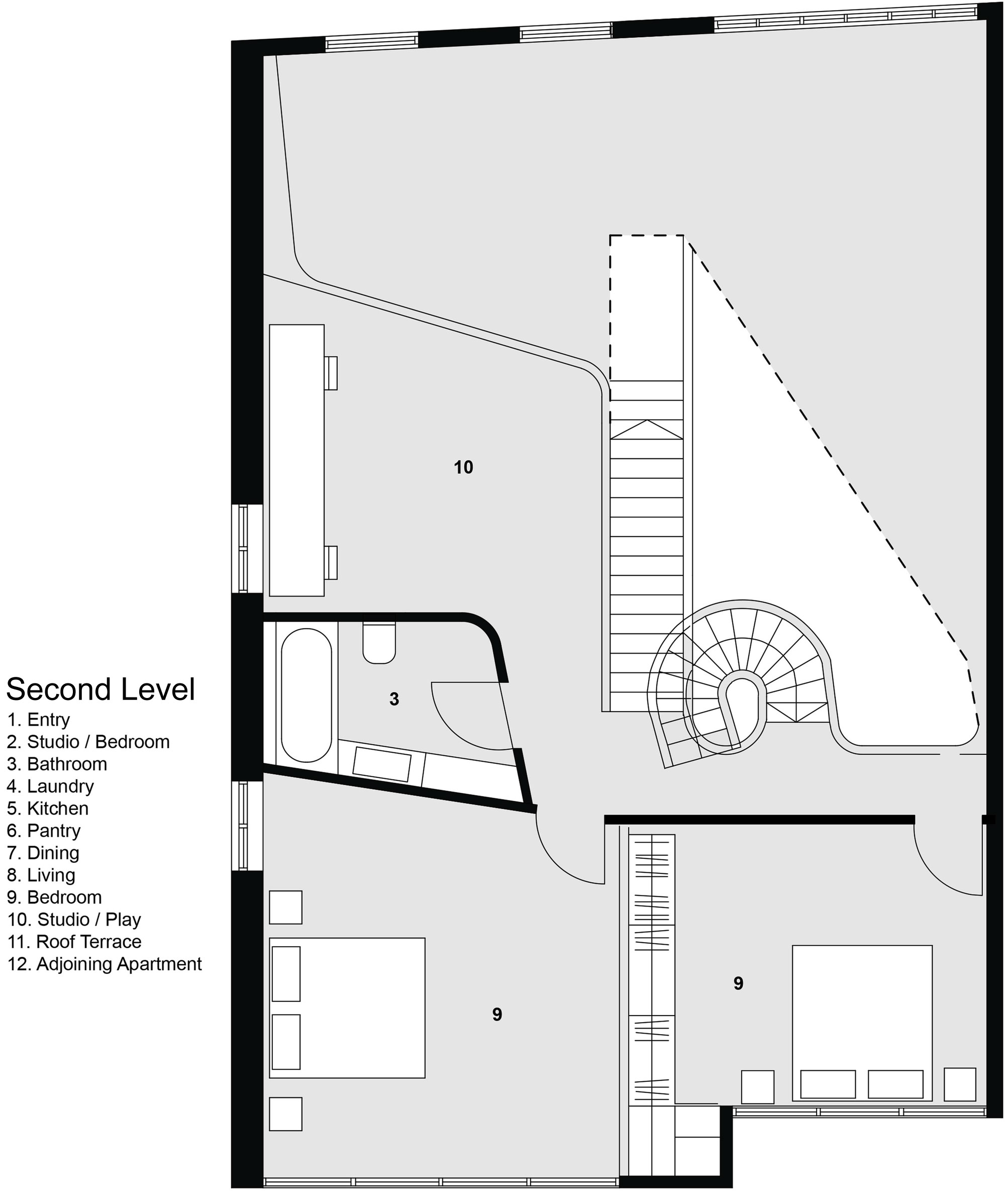
16/17 Images A Beautiful Modern Minimalist Loft with a Sculptural Staircase in Melbourne by Adrian Amore (16)