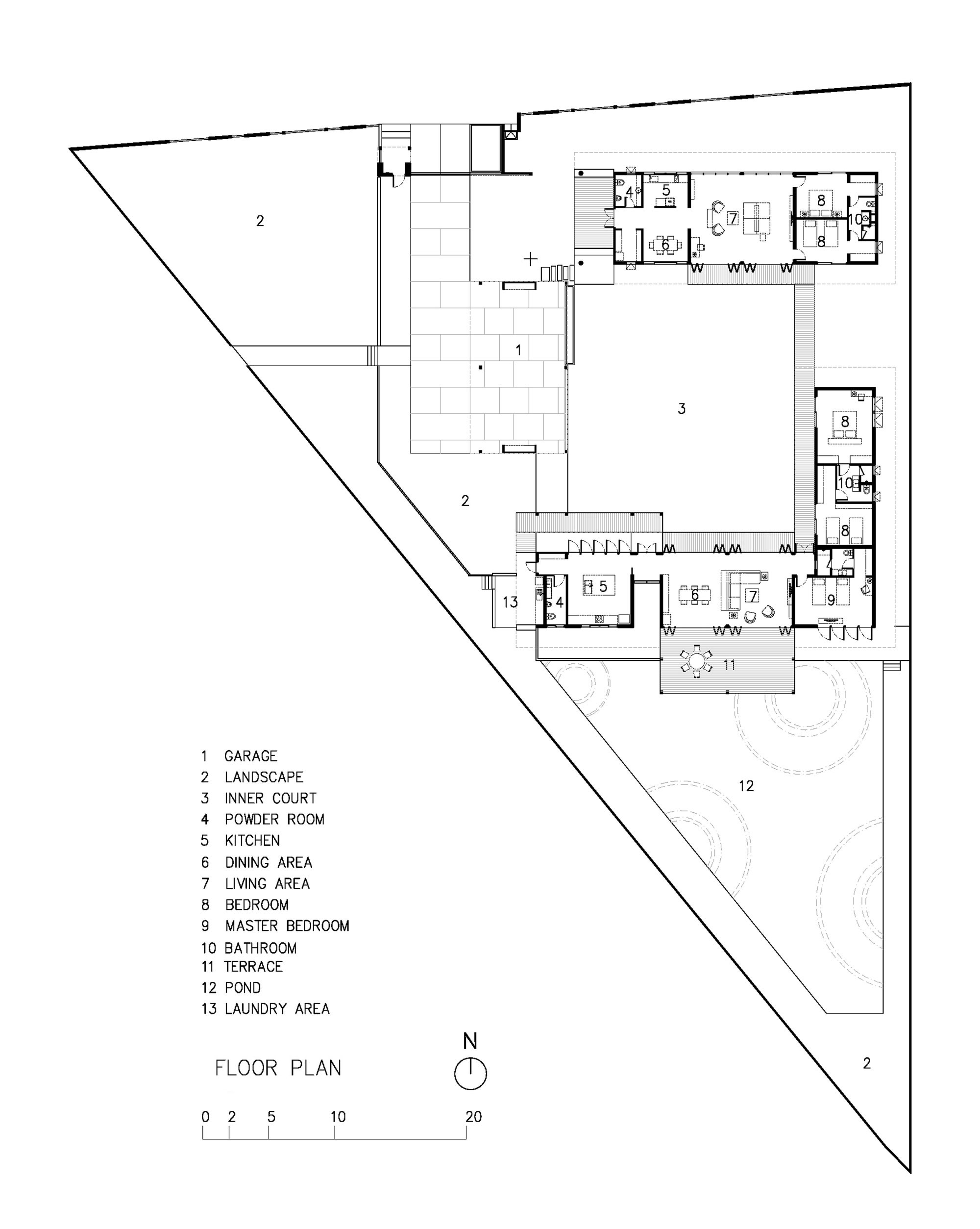
23/31 Images A Stunning Contemporary Triangle House with Gabled Walls in Nakhon Pathom, Thailand by Phongphat Ueasangkhomset (23)