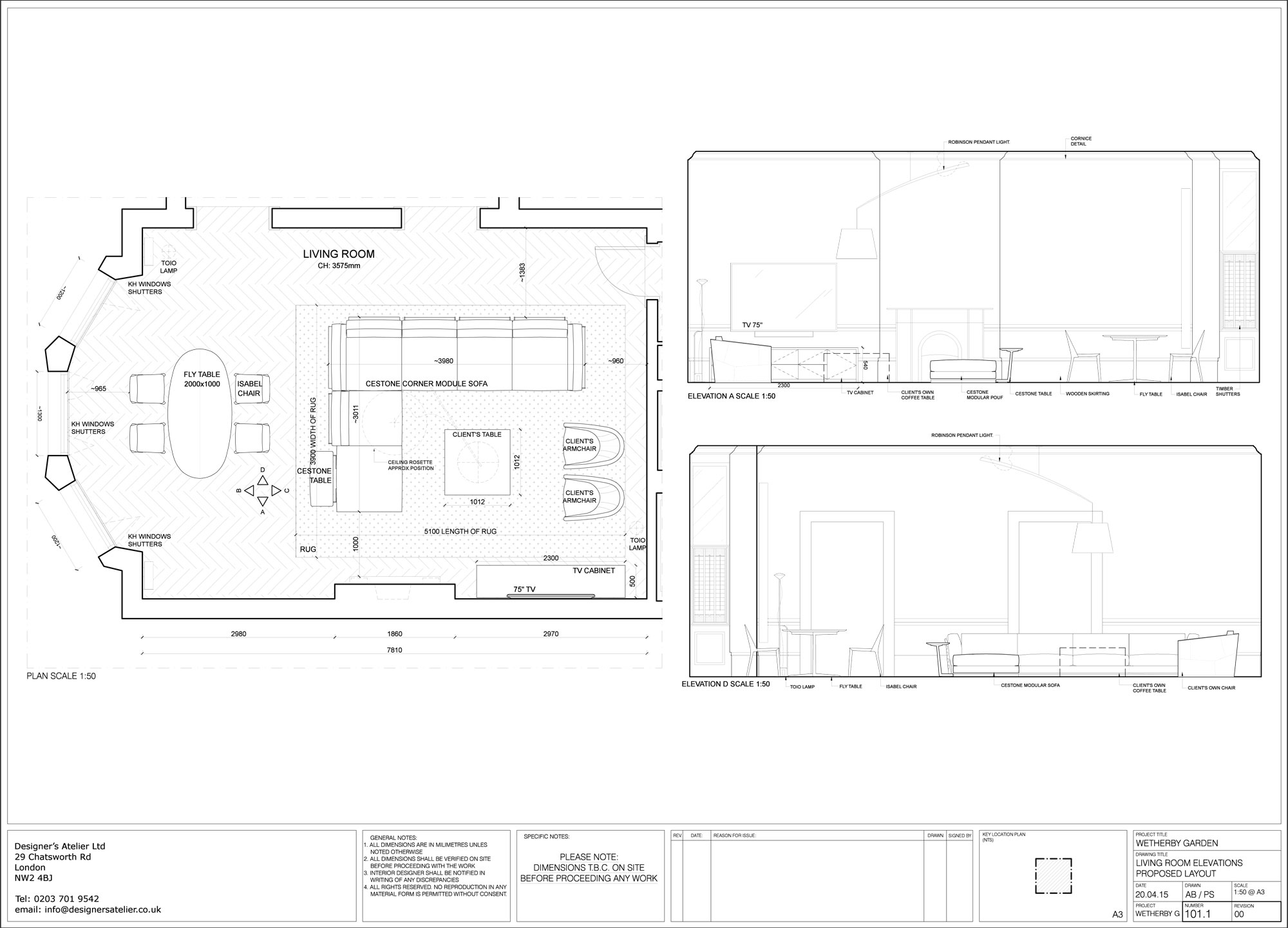
20/21 Images A Light-Filled and Playful Apartment with Sophisticated Taste in South Kensington by Design Atelier (20)