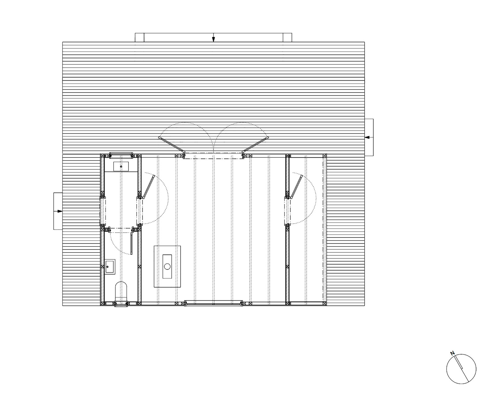
33/40 Images An Elegant Woodland Cabin with an All-Black Exterior in Belgium by De Rosee Sa Architects (33)