Villa Erard by Andrea Pelati Architecte
The villa is settled in a strictly planned residential zone hanging over the Diesse plateau, in the Swiss Jura Mountains. Contrasting with its heteroclite neighbours, the contemporary design revisits the typical gable roof houses.
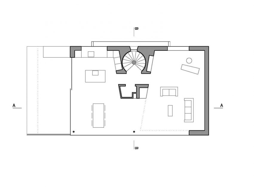
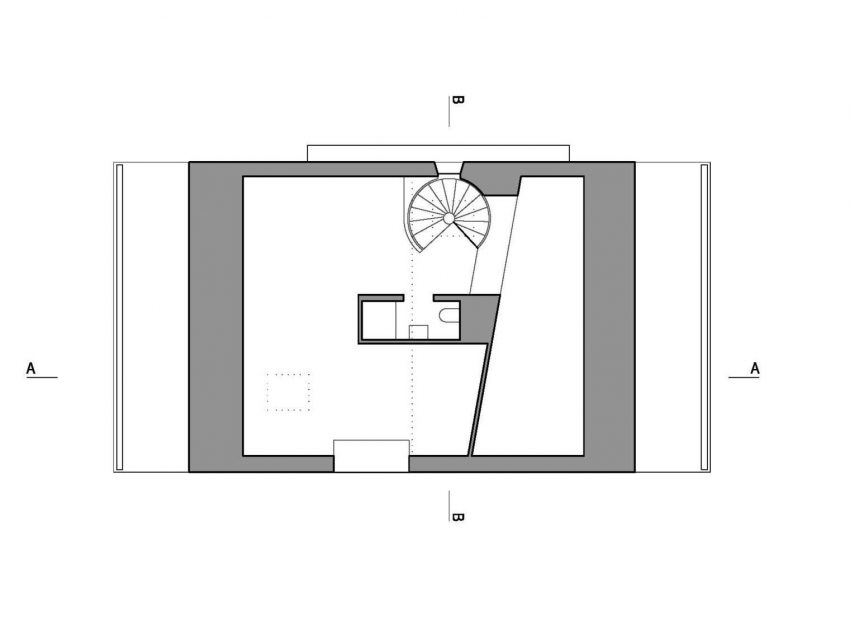
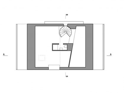
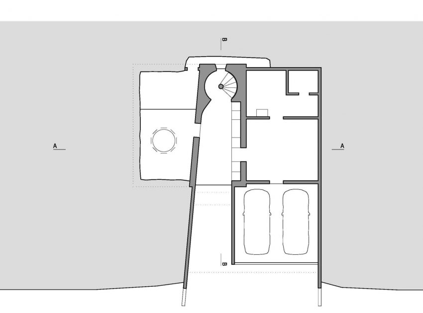
Encased in the rock mass, the almost hidden entrance door opens on a big hall: on the left, the wine cellar is directly carved into the stone, while straight ahead, a concrete spiral staircase leads to all levels. During the ascent, a long vertical window offers a glimpse to the outside rock wall and garden.
On the first floor, the bedrooms benefit from a certain intimacy provided by the green garage roof, whereas on the level above, the living room, dining and kitchen open generously to the South and West.
At last, the attic is an open space suspended over the living room, possibly used as a guest’s room or office, with the most beautiful view on the Lake of Neuchâtel and the Alps.
Photos courtesy of Andrea Pelati Architecte & Thomas Jantscher
View more: A Warm Contemporary Home Made From Recycled Shipping Containers Materials in Nyborg, Denmark
Related: An Elegant Modern Concrete Home with a Flexible Interior in Stuttgart
Here: An Ultramodern and Stylish House with Welcoming Interior and Sharp Lines in London
Read also: A Unique House with Geometric Shapes and Colorful Interiors in Niigata Prefecture
Next: A Vast and Futuristic Contemporary Home with Sophisticated Interiors in Ragusa, Italy
Check out: An Elegant Contemporary House for a Couple of Book Lovers in London, England
Read more: An Elegant and Light-Filled Modern Townhouse with a Folding-Up Shutter in Ho Chi Minh












