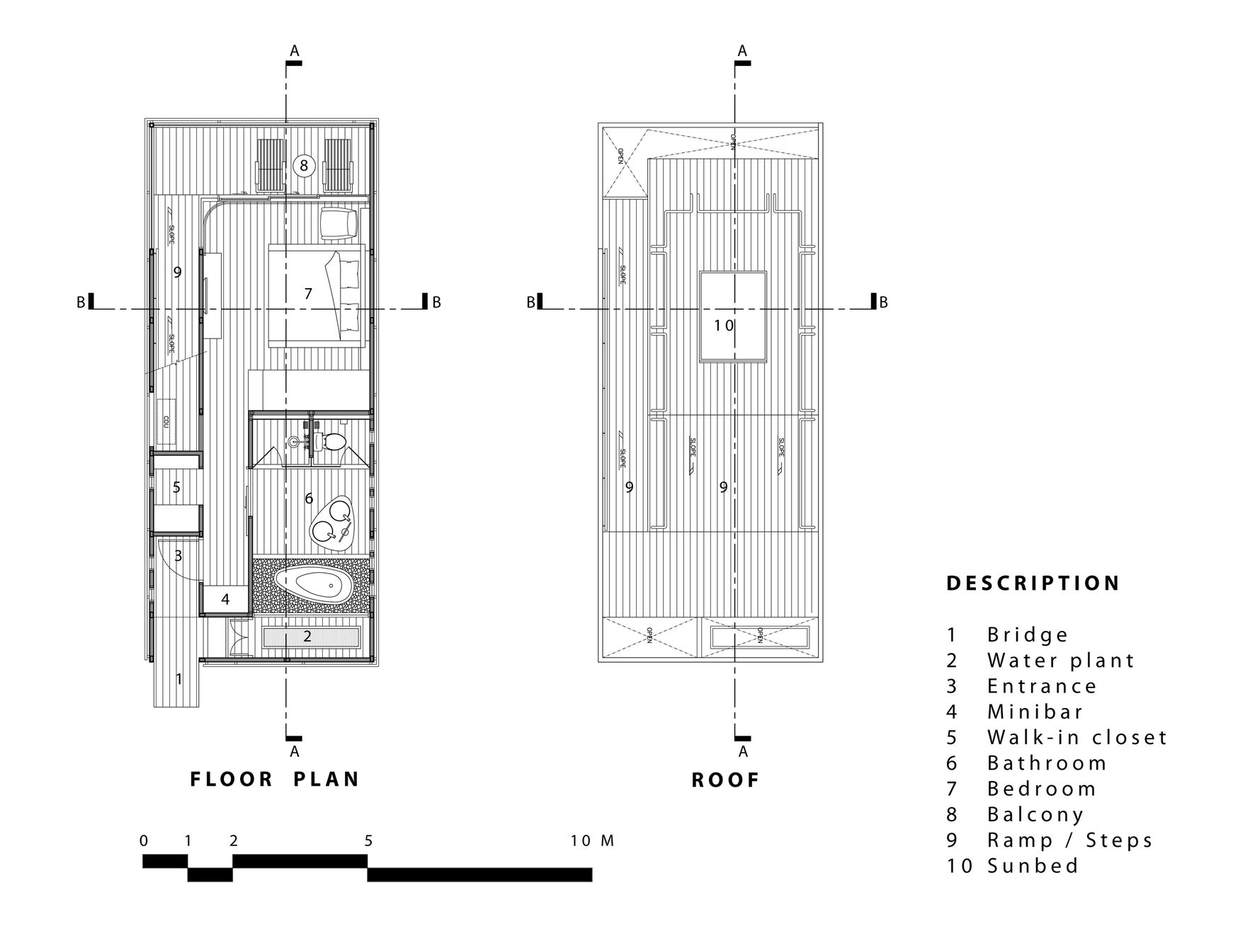
18/21 Images A Beautiful Floating Home with Lush Landscape and Mountain Views on the River Kwai by Agaligo Studio (18)