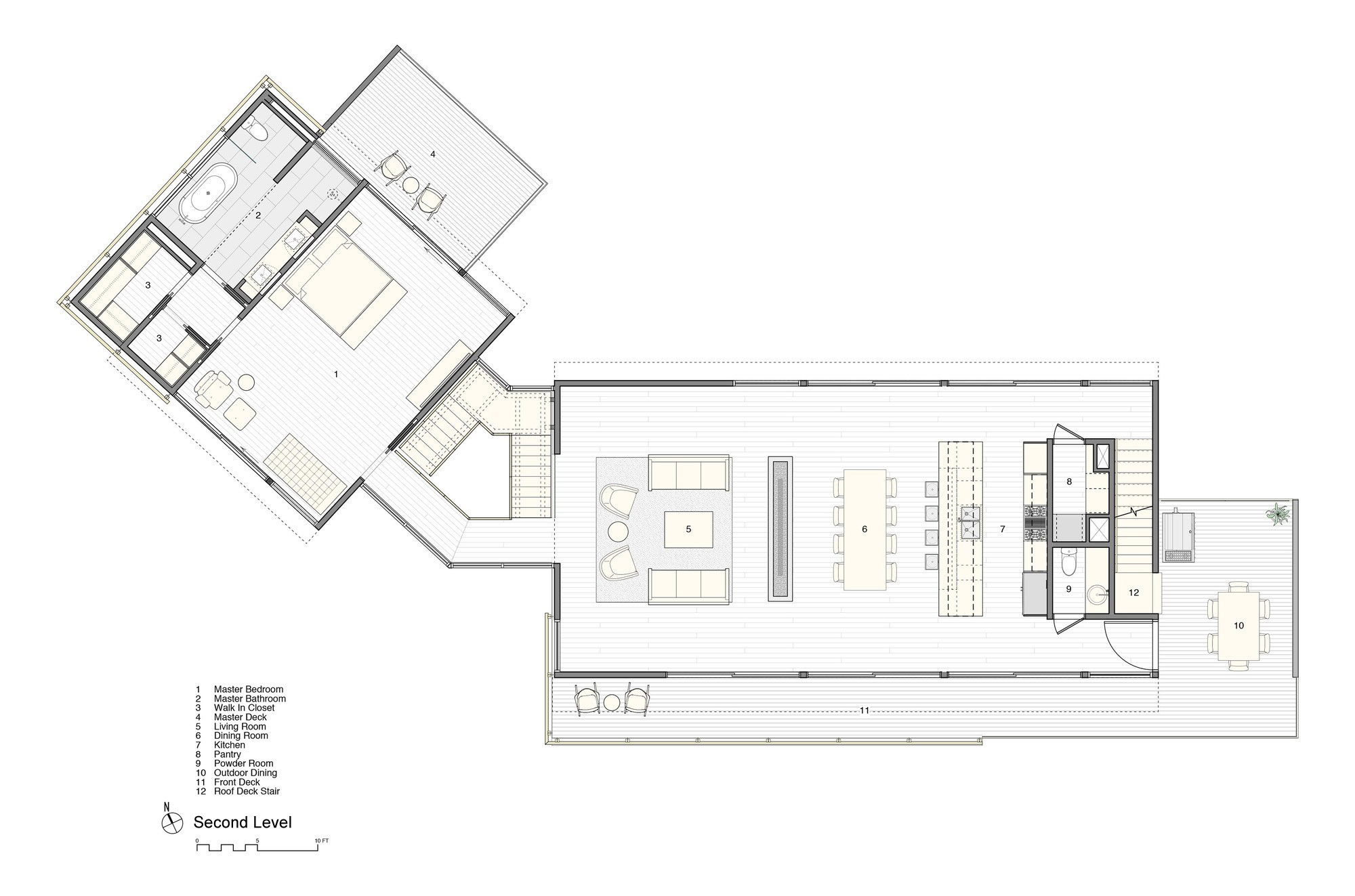
29/30 Images A Contemporary Family Home with Stunning Views in the Dunes of Amagansett by Stelle Lomont Rouhani Architects (29)