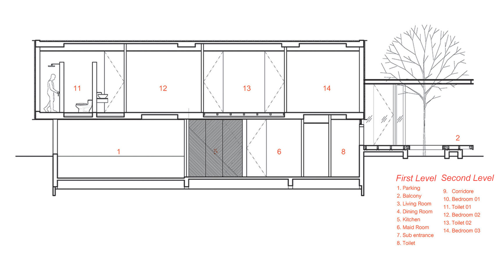
36/39 Images A Stunning Modern House with Gorgeous Inner Courtyards in Pak Chong District by IDIN Architects (36)