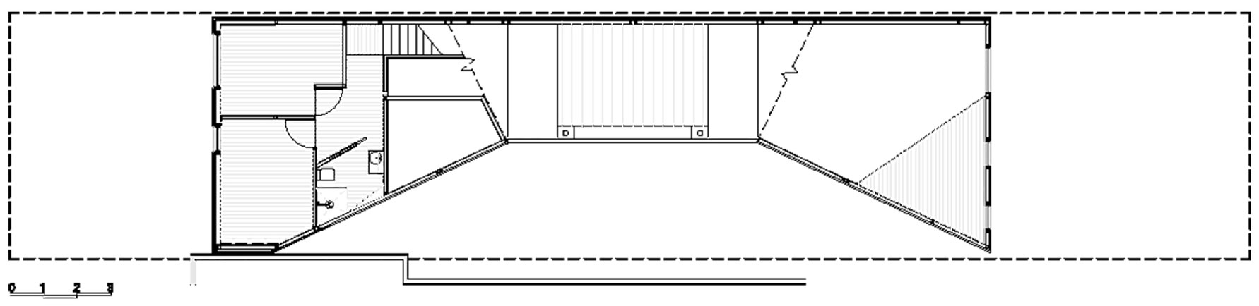
27/29 Images A Stunning Modern Home with Unique and Unconventional Layouts in Richmond by Edwards Moore (27)