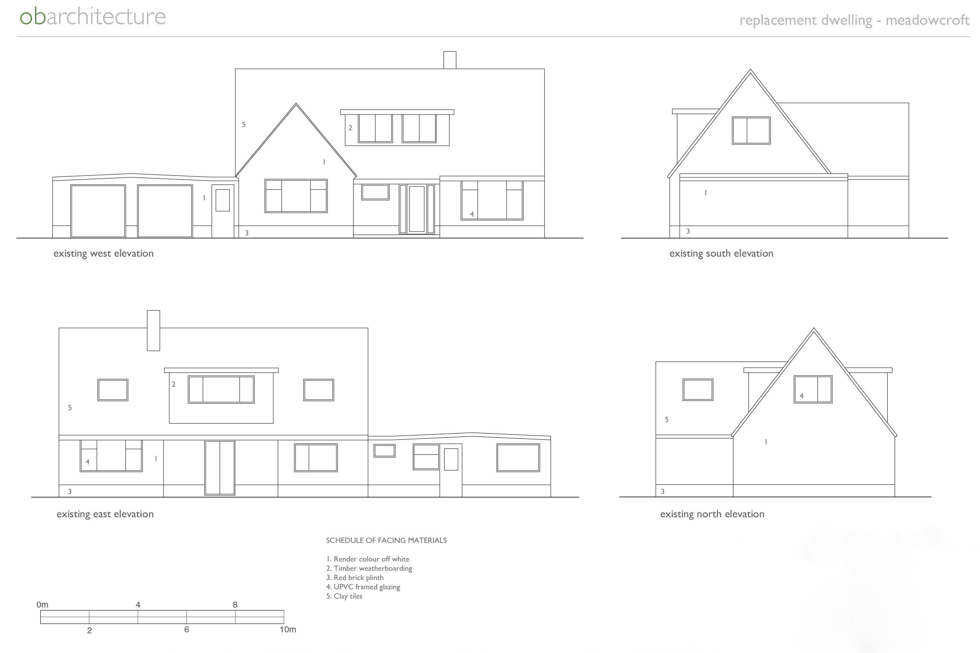
21/28 Images A Luminous Contemporary Home with Pitched Roof and Large Chimney in Hampshire by OB Architecture (21)