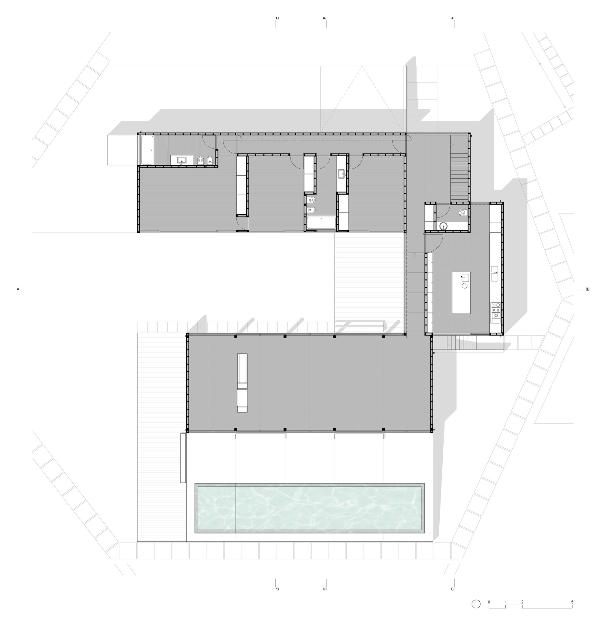
24/29 Images An Elegant Modern U-Shaped House in a Dense Pine Forest in Aroeira, Portugal by ColectivArquitectura (24)