Bridge House by Höweler + Yoon Architecture
Bridge House is a multi-generational family home that spans both landscapes and age groups. Sited between a suburban development and a protected wooded area, the Bridge House appears as a single family home from the front. Its rear elevation reveals an internal organization designed to accommodate three generations living together under one roof—or in this case, within three volumes that act as a number of roofs. These three volumes are devices that frame views through the house of the dramatically sloped wooded site. Views from the suburban street through to the sloped landscape are informed by the programmatic volumes of the main floor and the bridge-like volume above, which frame the scene from interior and exterior vantage points.
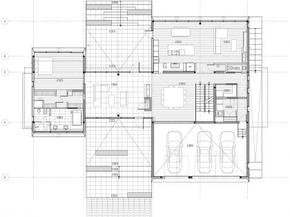
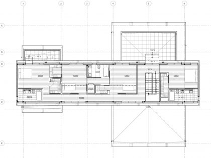
Each tubular volume contains a carefully organized relationship of private and public areas that correspond to the family’s generational structure. The smaller volume of the ground floor is the private master suite for the grandparents (the clients) who are first-generation Korean-American immigrants to the United States. The larger volume of the ground floor is the collective public area of the multi-generational home, which includes all shared programs, such as the kitchen, family room, dining room and garage. Physicallybridging between these two spaces is a long volume that houses the family’s second and third generations. Two master suites bookend the bar volume: one for their visiting daughter and one for their live-in son and daughter-in-law who reside in the space with the clients’ two grandchildren. The grandchildren live in a “Jack and Jill” suite and have access to the upper-level outdoor space, which is set between the master bedrooms.
The void created under the bridge-like volume feels like an extension of the outdoors and allows the landscape to move through the house, blurring outside and inside space. This transitional space extends into an outdoor room visually supported between the lower volumes and exterior stairs, which descend into the landscape. All three tubular volumes face the woods so that bedrooms and communal spaces frame views for all generations within the home. The three-volume organization provides private, outdoor space for each generation to enjoy the landscape from a variety of perspectives and elevations. The front patio extends through the ground floor volume onto a back terrace to create a formal shared outdoor space, which also provides steps leading into the landscape. A private roof balcony extends from the second floor master bedroom to provide an intimate outdoor space for the clients’ son and daughter -in-law. Another large roof terrace is projected from the grandchildren’s suite, which creates a raised outdoor gathering area. By designing a visual continuum, the adjacent landscape extends into the functional living spaces of an otherwise compact house.
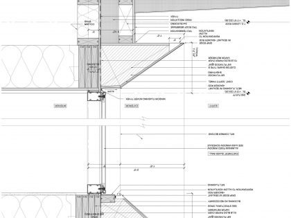
Spaces facing the back of the house feature full panoramic views of the rear ravine while the opaque materiality of the front elevation creates privacy from neighbors. Volumes have triple-glazed window walls and utilize the beveled detail of their tubular geometry to create an overhang, which minimizes solar gain in the summer and maximize solar gain in the winter. The angle of the bevel is calibrated to mediate solar gain on all full-glass facades to create a minimal edge detail. As tubes oriented towards the woods, the volumes are further defined by their sharp end articulation and the material differentiation of their exterior cladding. The framing surface of the tubes is clad in custom-bent anodized aluminum vertical panels, which reflect the style of tongue-and-groove vertical panels common in the neighborhood. The infill panels are custom-bent horizontal “shingles” of anodized bronze aluminum, which create a ri ch and varied color spectrum throughout the day. The interior features several elements made from recycled material, including tables and benches custom-fabricated from wood salvaged from another site. We also designed an interior staircase and fireplace fabricated from hot-rolled steel and wood. These architectural components vertically connect the volumes of the house both structurally and spatially and pin together this three-volume, three-generation home.
Photos by: Höweler + Yoon Architecture & Jeff Wolfram
View more: OOIIO Architecture Designs a Striking and Unusual Contemporary Home in Madrid, Spain
Related: A Modern Forest House with Dramatic Cantilevers and Ocean Views in West Vancouver
Here: A Spacious and Bright Home Surrounded by a Rocky Landscape in Syracuse, Italy
Read also: Atelier Landschaft Designs a Spectacular Contemporary Home in Nashik, India
Next: A Stunning Home with Gabion Walls and a Grassy Viewing Deck in Sofia, Bulgaria
Check out: A Cozy Contemporary Home Illuminated with Natural Light in North Carolina
Read more: A Spacious Modern Brick Home with a Bright and Elegant Interior in Ahmedabad, India












