Book Tower House by Platform 5 Architects
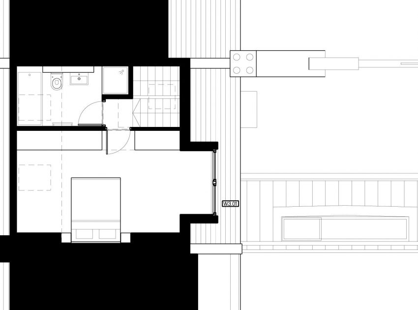
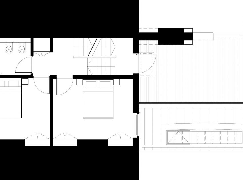
Book Tower House is a typical late Victorian mid-terraced house in Hampstead, London. The original property contained some Arts and Crafts influenced decorative aspects, which the owners were keen to retain and highlight, while introducing contemporary interventions.
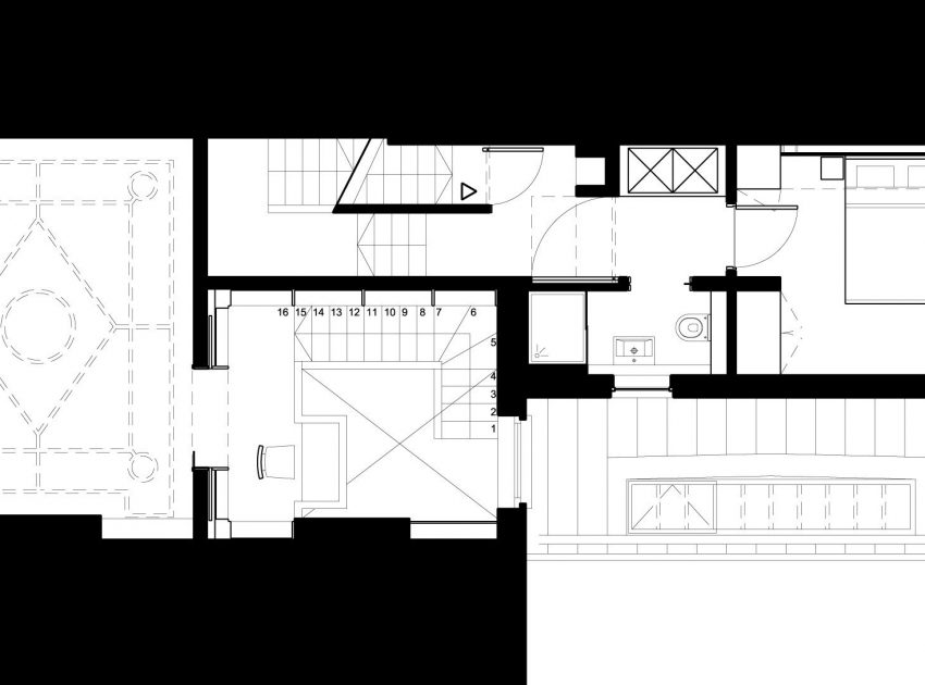
The main feature is a double height library space at the heart of the house, created by combining the original rear reception room and a first floor bedroom. The feature staircase, wrapped in oak bookshelves, leads up to a built-in desk and study area with views over the ground floor.
To the rear of the house, a side extension to the existing kitchen was formed by resting an oak rib and skin structure, externally clad in zinc, onto the brick party wall. A cosy seating area with slide-away corner glazing creates a space where you feel surrounded by the garden.
Photos by: Platform 5 Architects & Alan Williams Photography
View more: A Luxurious Contemporary Home Full of Stunning Character in Perth
Related: An Elegant and Idyllic Contemporary Home with Striking Views in Flanders
Here: An Eco-Friendly Modern Home with Green Roof and Ventilated Facade in Blue Mounds, Wisconsin
Read also: A Spacious Contemporary Wooden Home with Cedar Walls Inside and Out in Poznań
Next: A Stunning Modern Home with Wonderful Views Over the Rocky Mountains in Aspen, Colorado
Check out: Atelier Landschaft Designs a Spectacular Contemporary Home in Nashik, India












