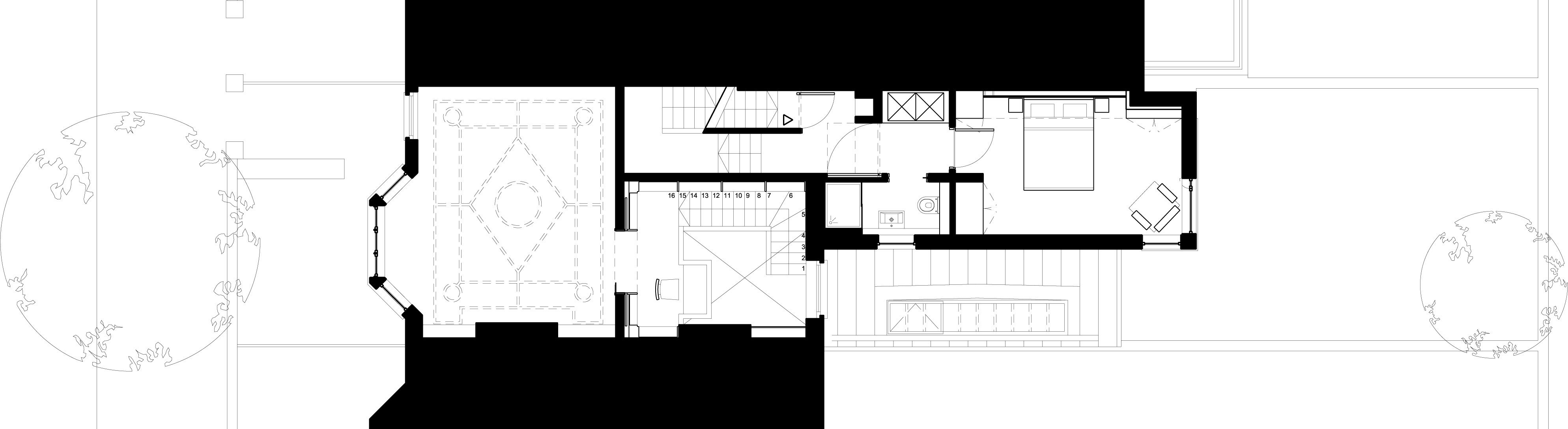
14/18 Images A Bright Contemporary Home with Plenty of Natural Light in London, England by Platform 5 Architects (14)