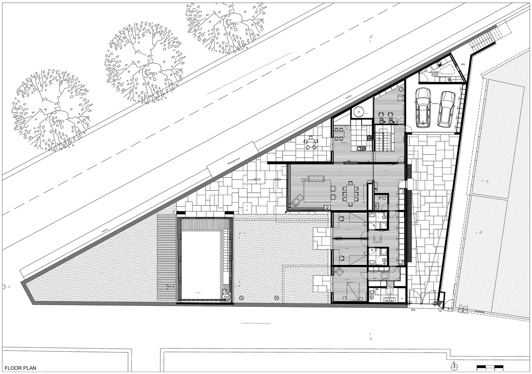
16/20 Images An Elegant Modern House with Courtyards and Pool Flanked by Stone Walls in Porto, Portugal by Sérgio Koch (16)