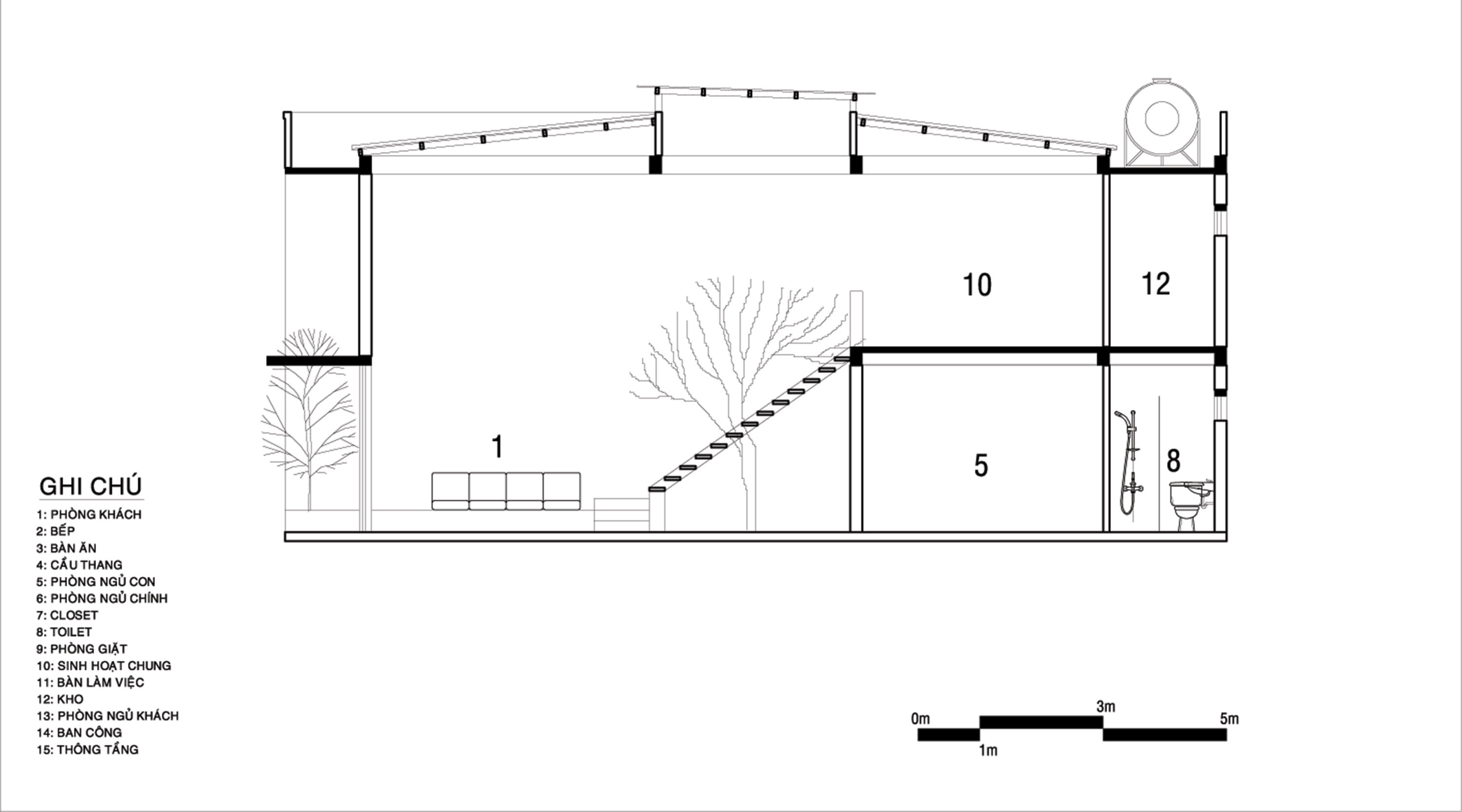
15/15 Images A Warm and Spacious House with Plenty of Natural Light in Dak Lak Province, Vietnam by 7A architecture studio (15)