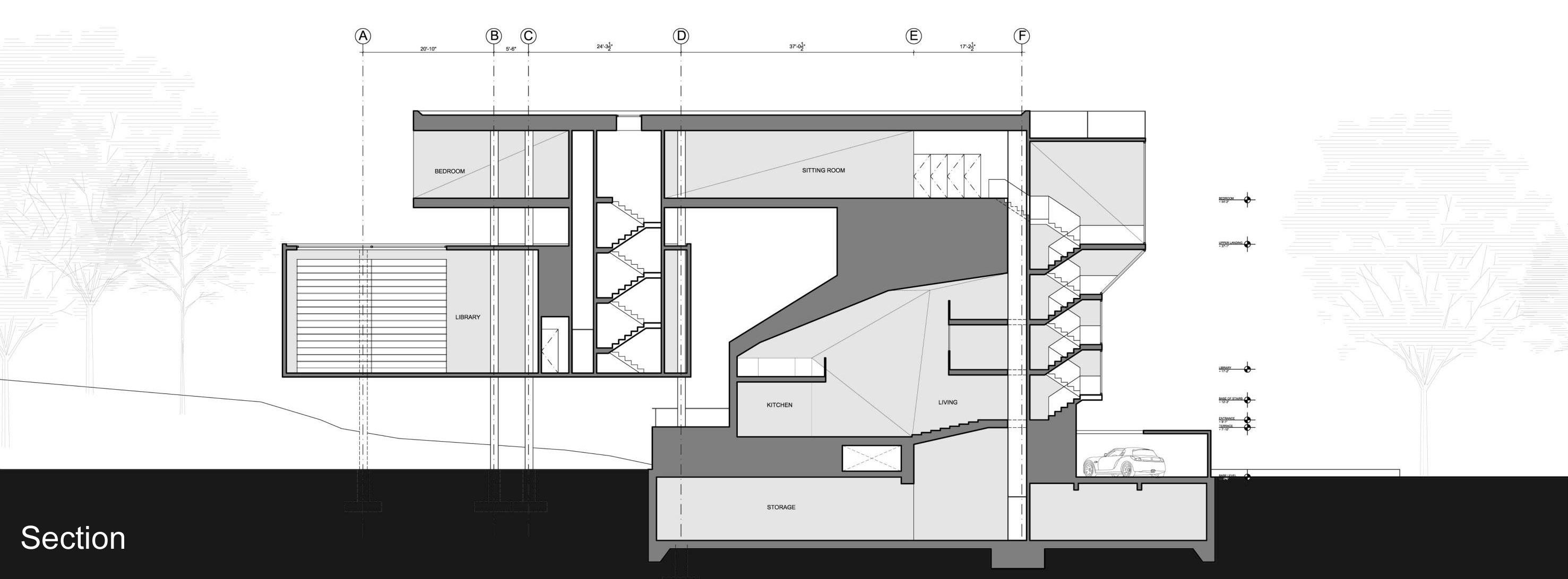
13/20 Images A Unique and Geometric Contemporary House for a Retired Pilot in Duchess County by Urban Office Architecture (13)