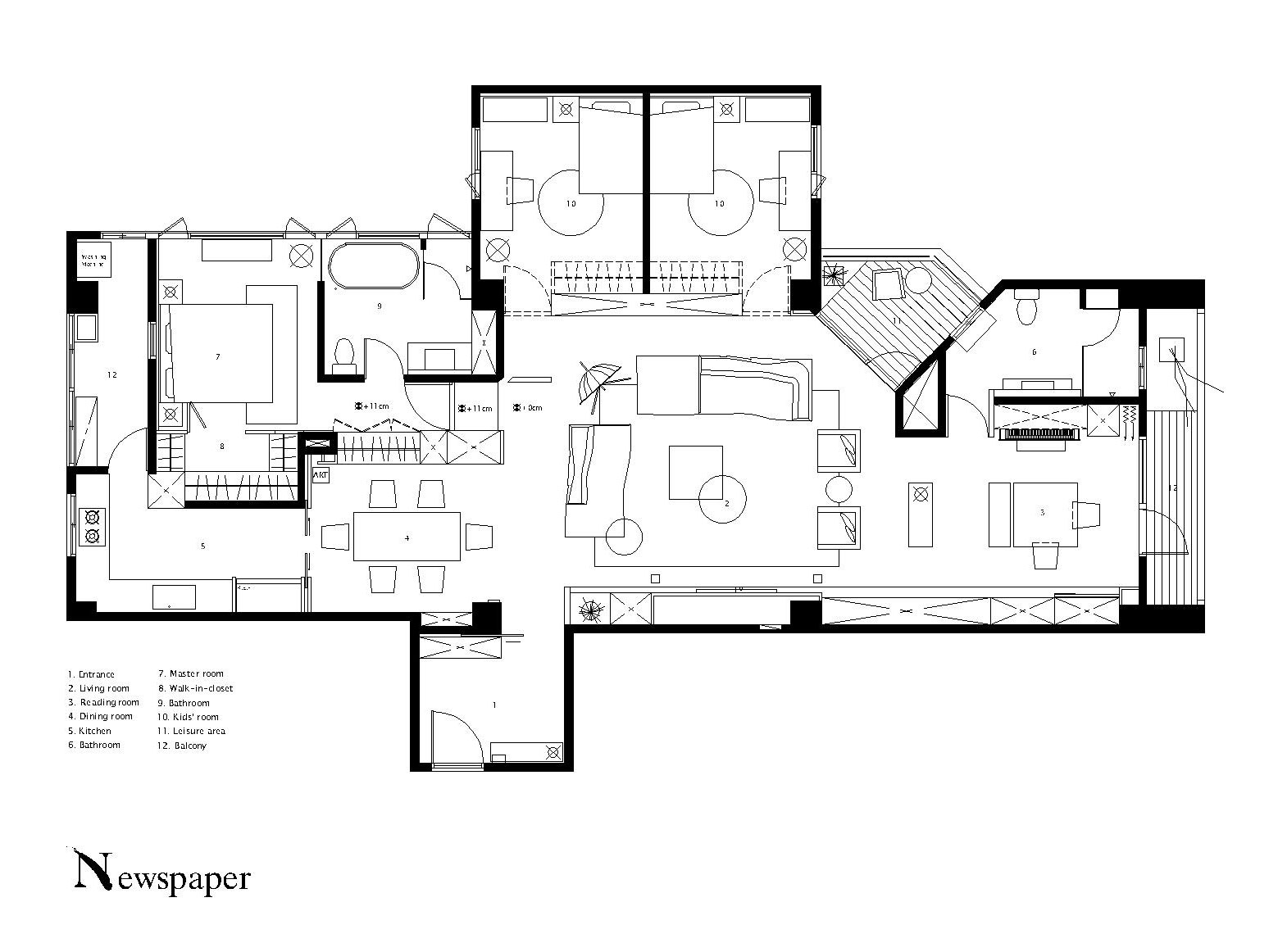
28/28 Images A 30-Year-Old Apartment Becomes an Elegant and Warm Home in Taipei, Taiwan by Wei Yi International Design Associates (28)