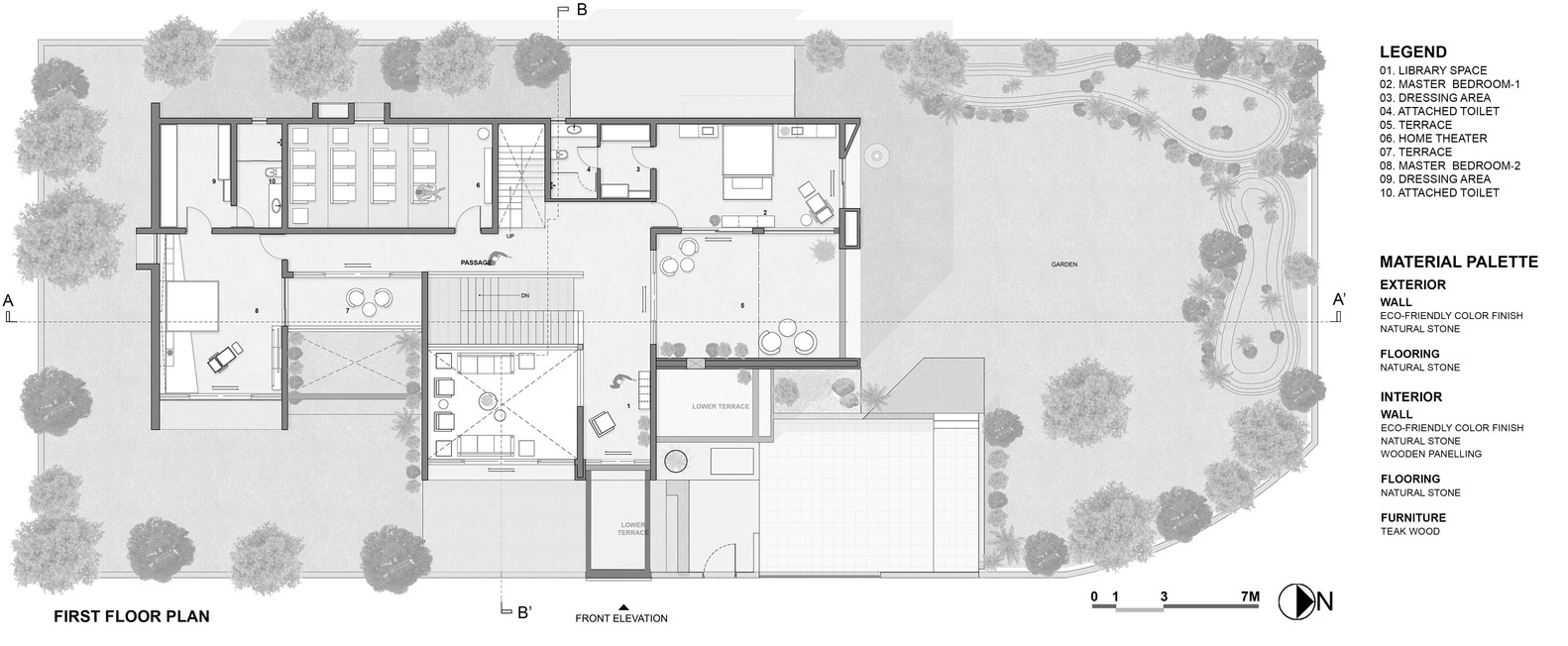
A Fantastic and Beautiful Modern White Home To Three Generations in Ahmedabad, India

A Fantastic and Beautiful Modern White Home To Three Generations in Ahmedabad, India by The Grid Architects (21)
21/26 Images