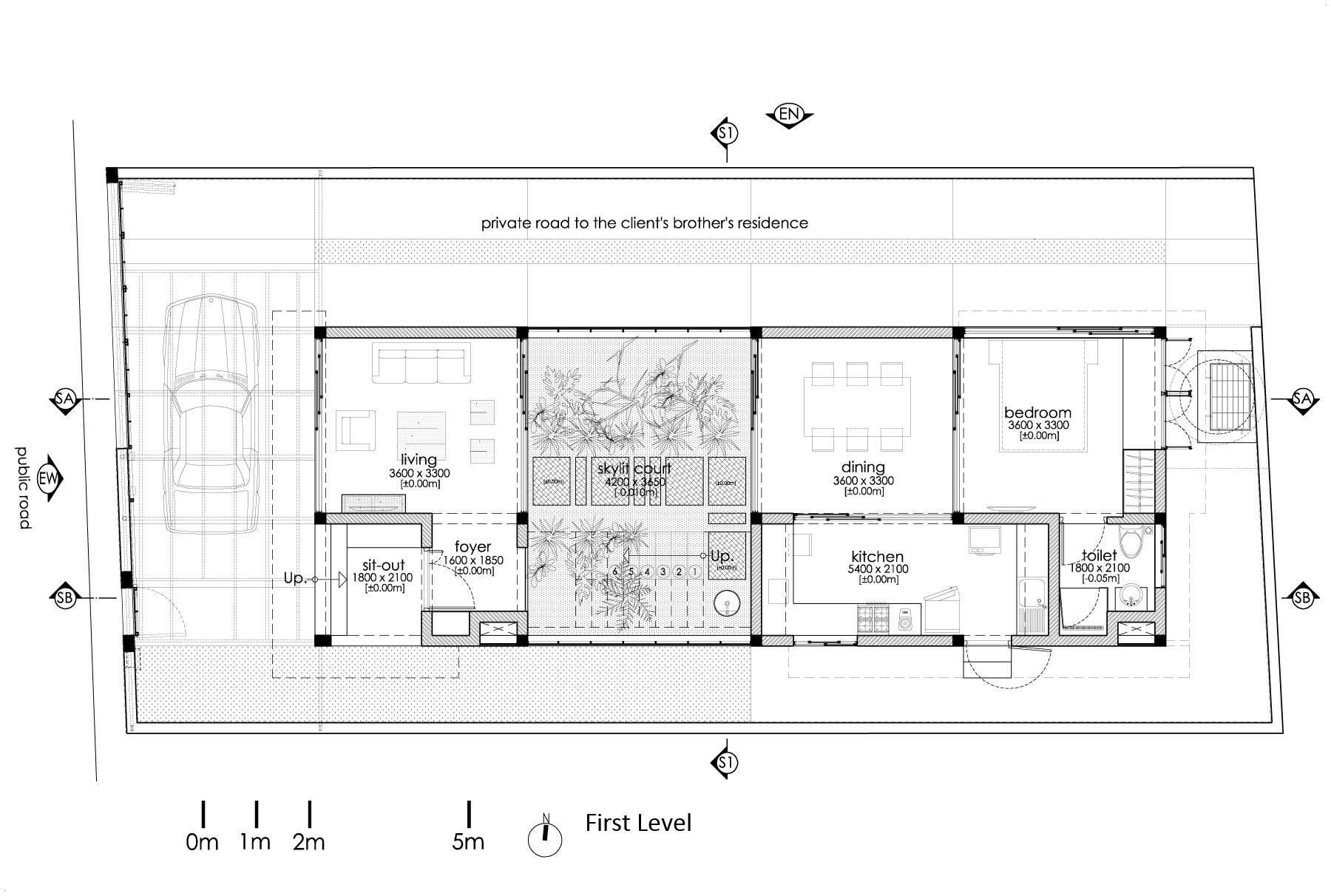
29/37 Images A Stunning and Spacious Home Framed by Perforated Corten Steel Walls in Kerala, India by LIJO.RENY Architects (29)