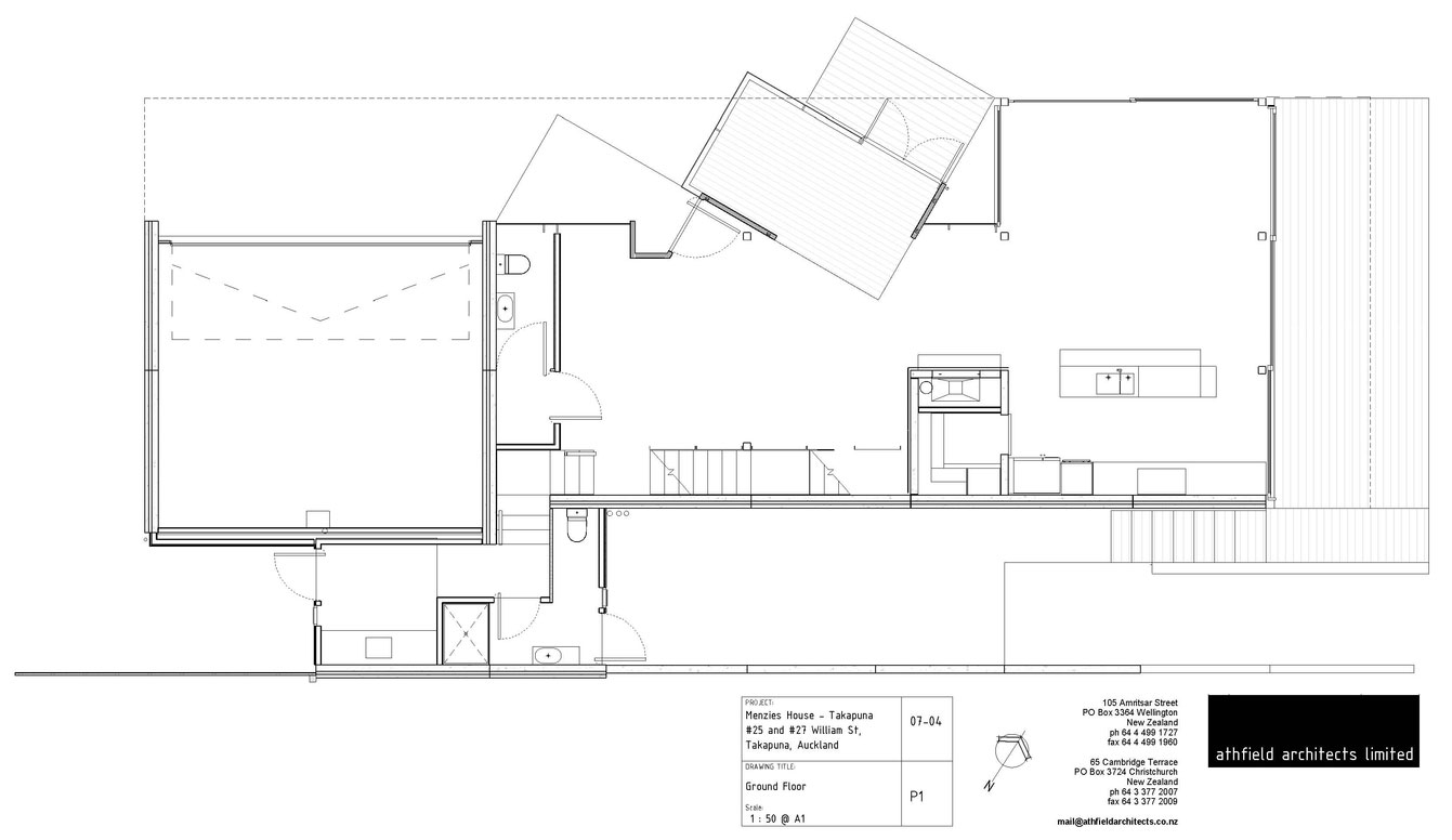
35/41 Images A Geometric Modern Beachfront Home Composed of Three Separate Structures in New Zealand by Athfield Architects (35)