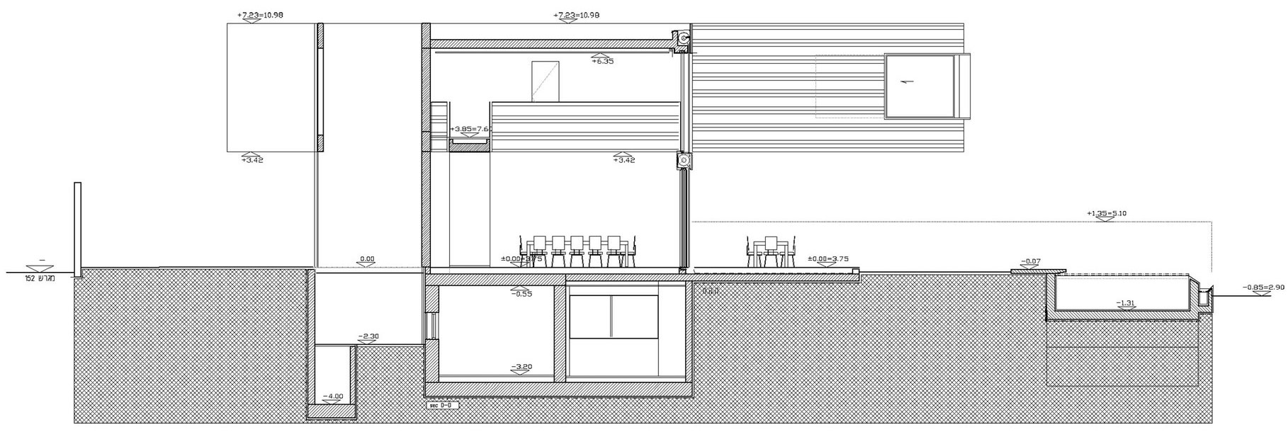
35/35 Images A Magnificent Modern Home with Pool and Cantilevered Bedroom in Shavei Tzion by Pitsou Kedem Architects (35)