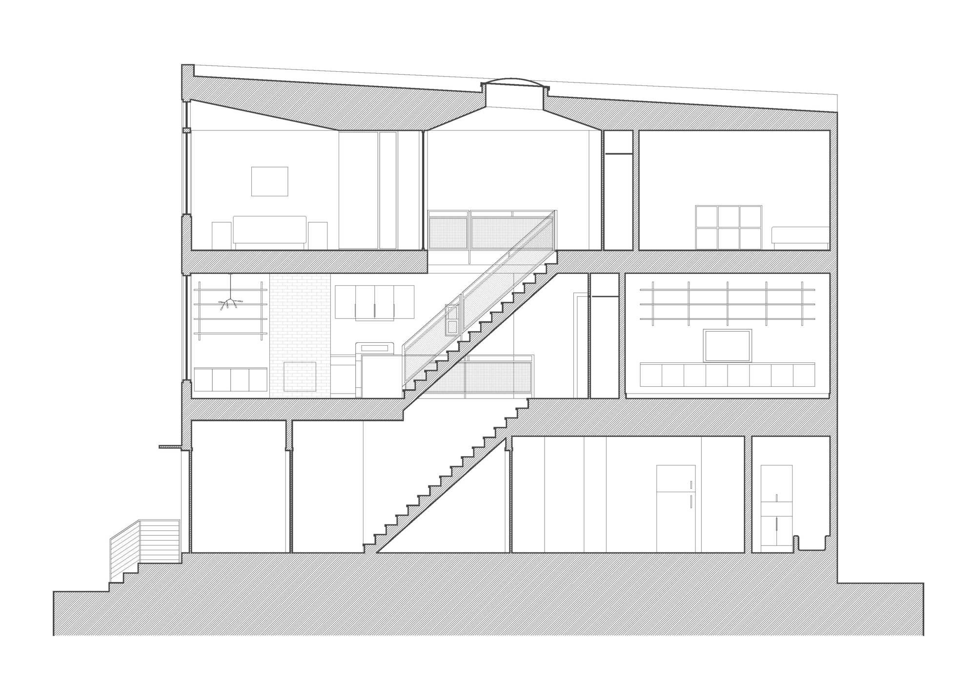
17/17 Images A Stylish Modern Light-Filled Home with Smart Red Accents in Brooklyn by Etelamaki Architecture (17)