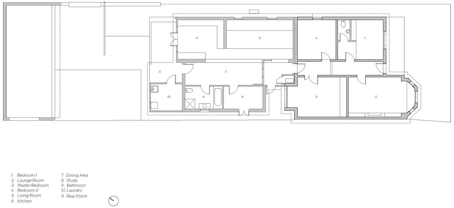
A Sleek Contemporary Home with Elegant Landscaping in Fitzroy, Australia

A Sleek Contemporary Home with Elegant Landscaping in Fitzroy, Australia by Simon Whibley Architecture & Antarctica (10)
10/13 Images