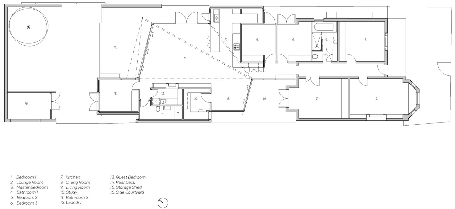
A Sleek Contemporary Home with Elegant Landscaping in Fitzroy, Australia

A Sleek Contemporary Home with Elegant Landscaping in Fitzroy, Australia by Simon Whibley Architecture & Antarctica (9)
9/13 Images

A Sleek Contemporary Home with Elegant Landscaping in Fitzroy, Australia by Simon Whibley Architecture & Antarctica (9)