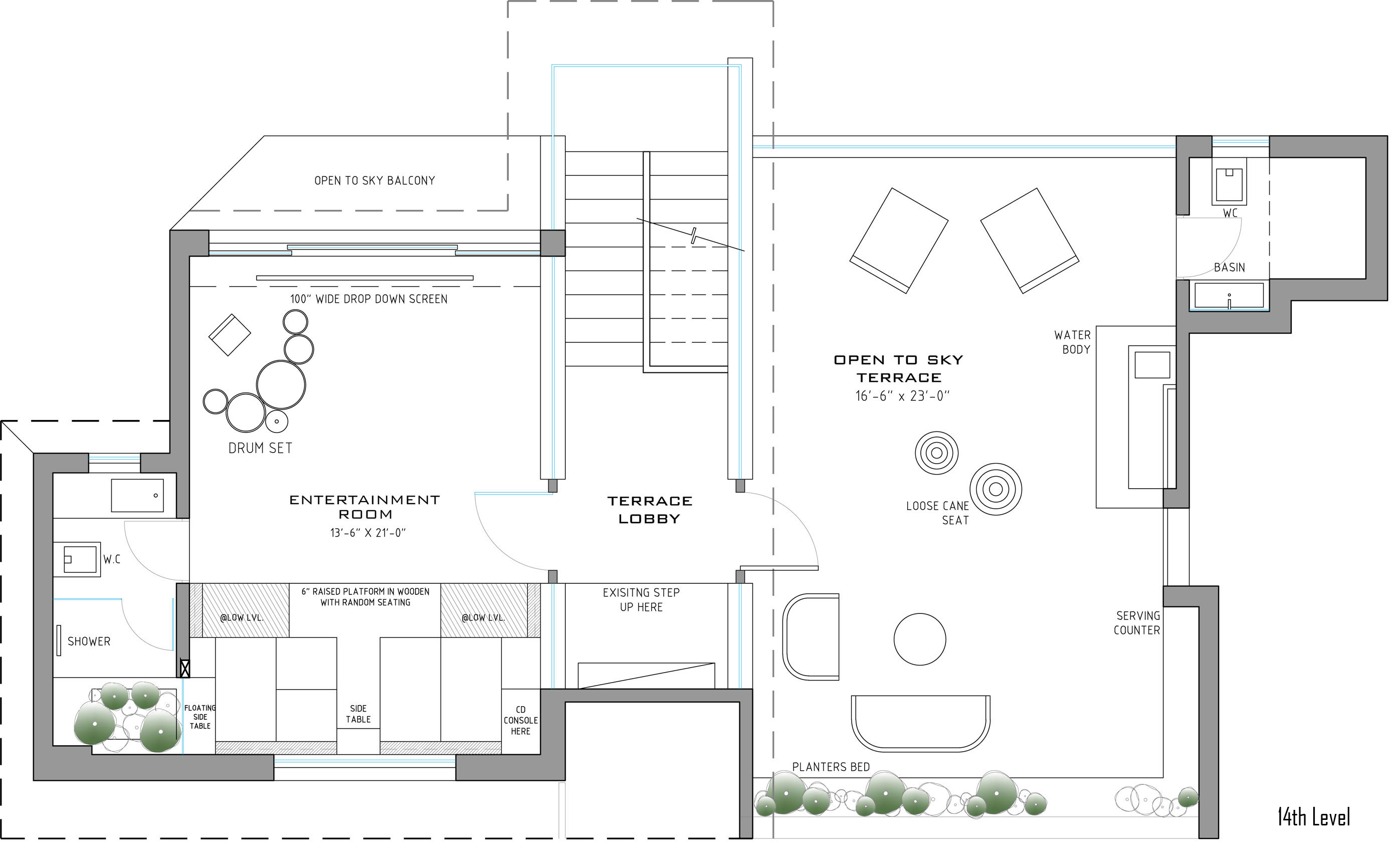
24/24 Images A Sophisticated Triplex Penthouse with Splendid and Elegant Ambiance in Mumbai, India by Space Dynamix (24)