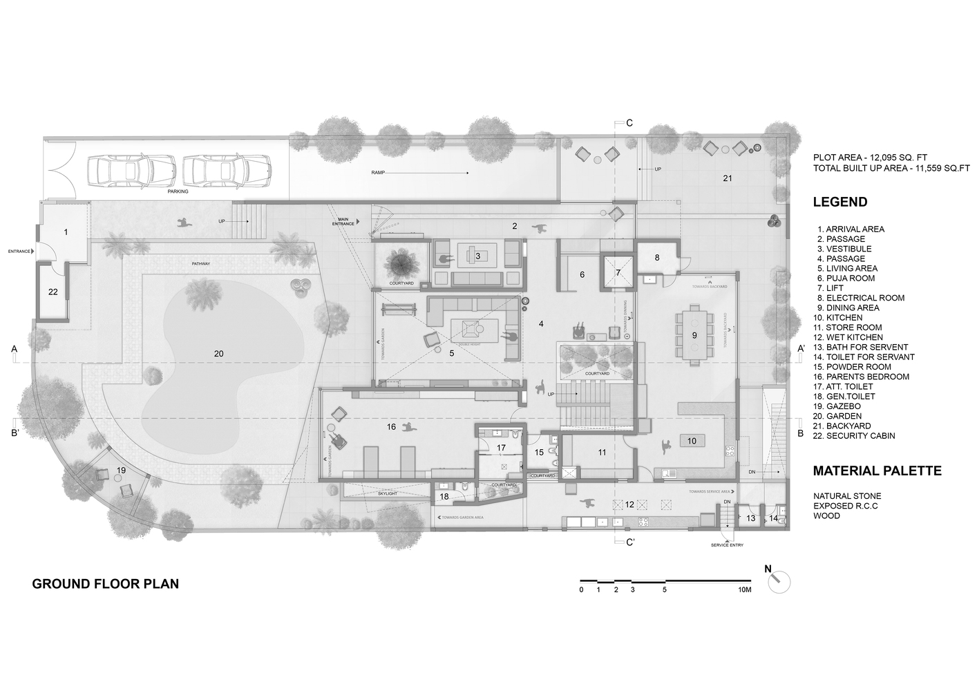
29/31 Images A Striking Modern Brutalist House with Exquisite Details in Ahmedabad, India by The Grid Architects (29)