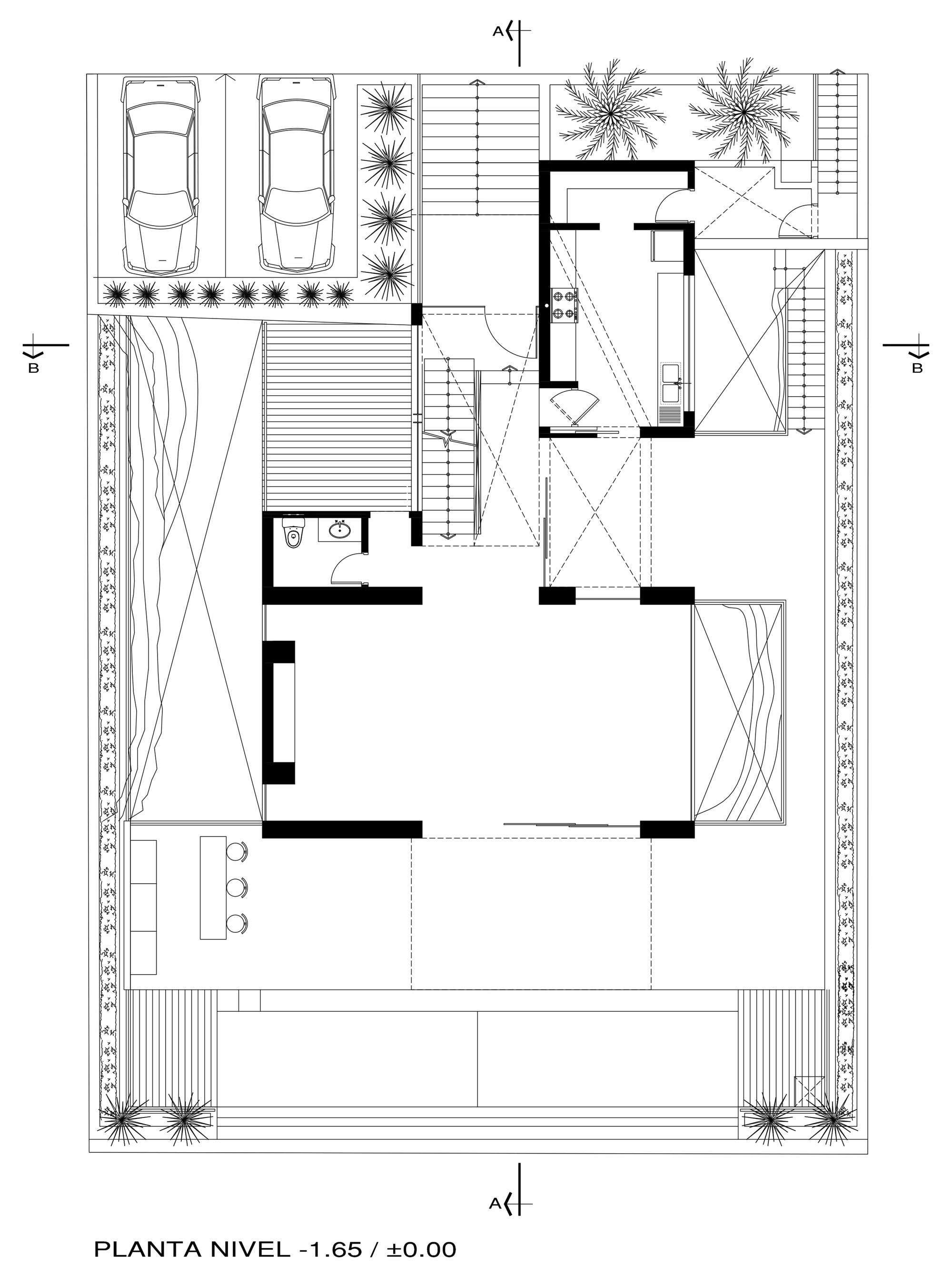
16/20 Images A Stunning Contemporary House with Spectacular Views Over the Bay in the Pucusana District by Domenack Arquitectos (16)