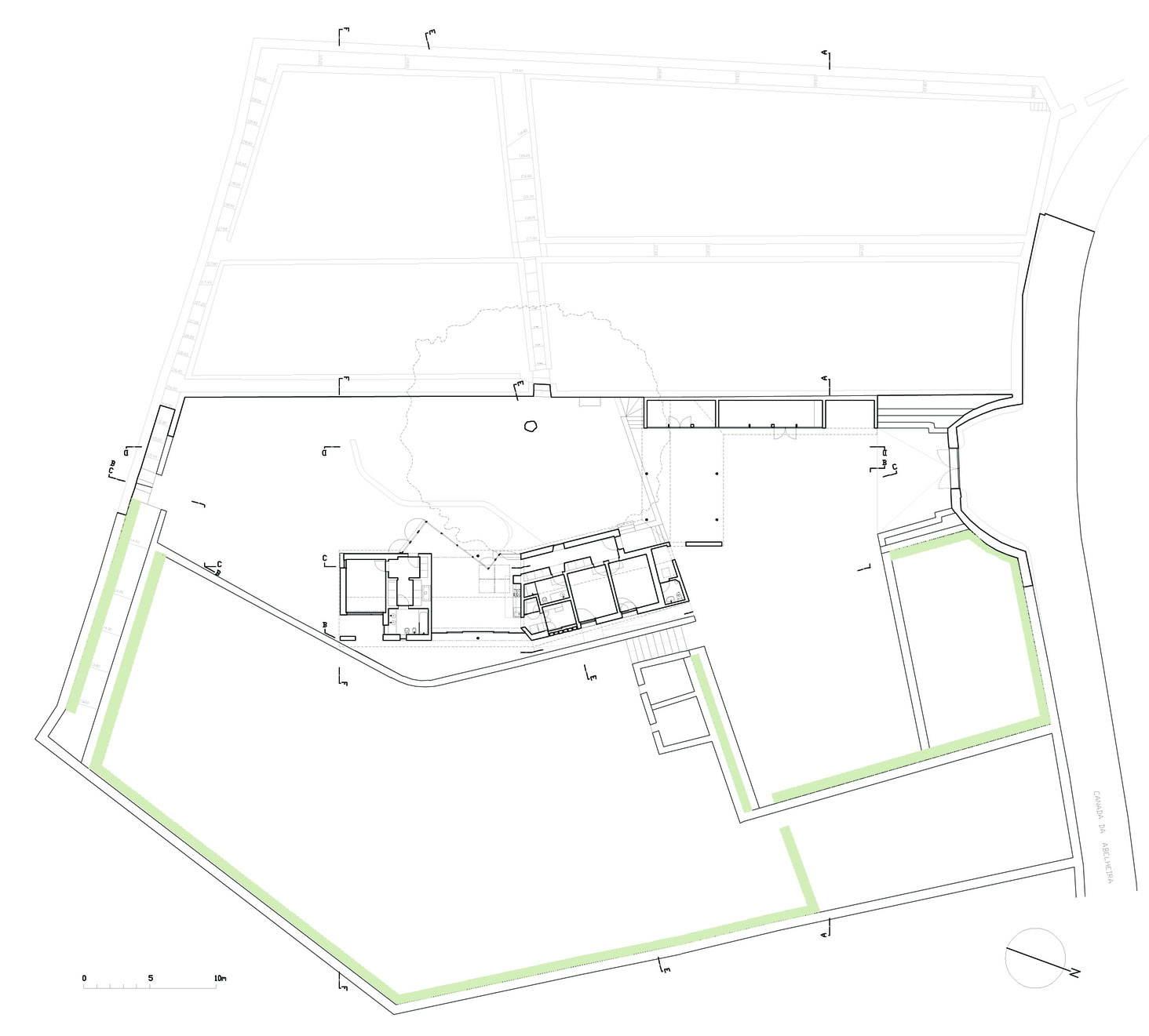
A Bright Contemporary Red Home Consists of Two Volumes Connected by a Wide Corridor in Ponta Delgada

A Bright Contemporary Red Home Consists of Two Volumes Connected by a Wide Corridor in Ponta Delgada by Pedro Mauricio Borges (24)
24/28 Images