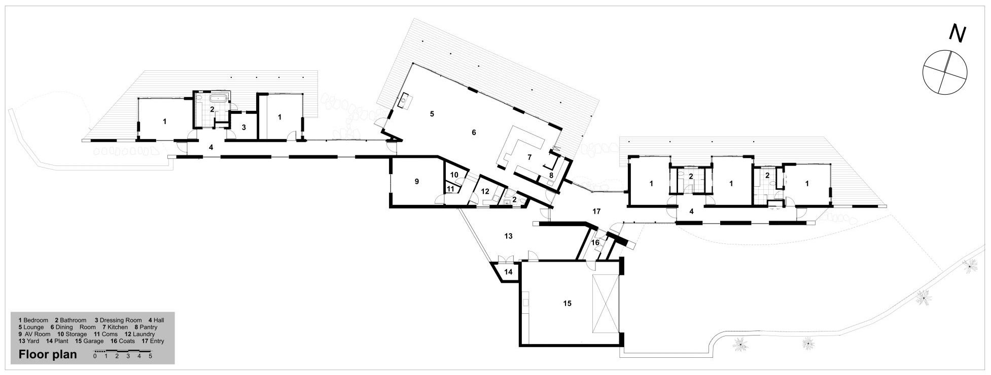
8/15 Images A Spectacular Long and Low Hillside House Surrounded by the Southern Alps of New Zealand by Sarah Scott Architects Ltd (8)