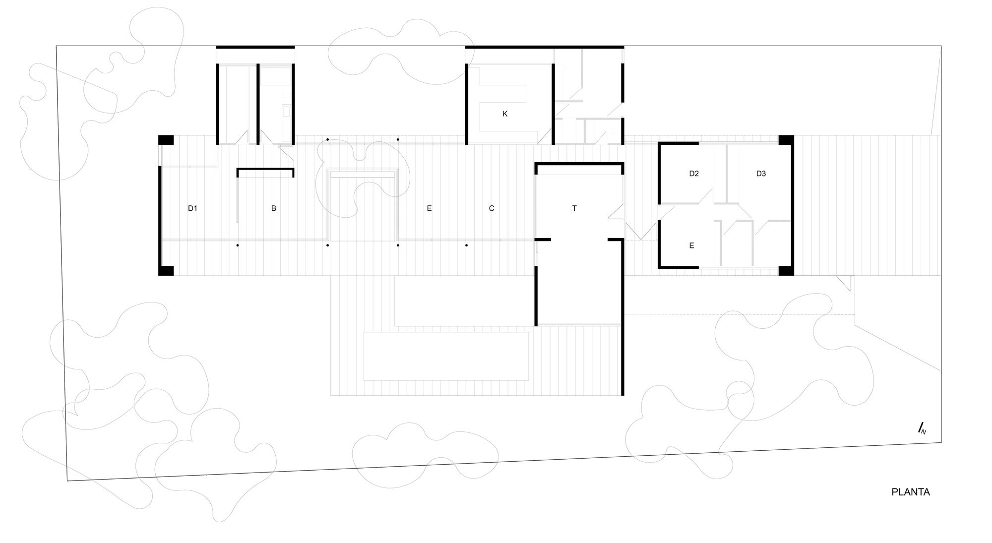
16/20 Images A Unique Home of Metal, Concrete and Plenty of Glass in Las Condes, Chile by Iglesis Arquitectos (16)