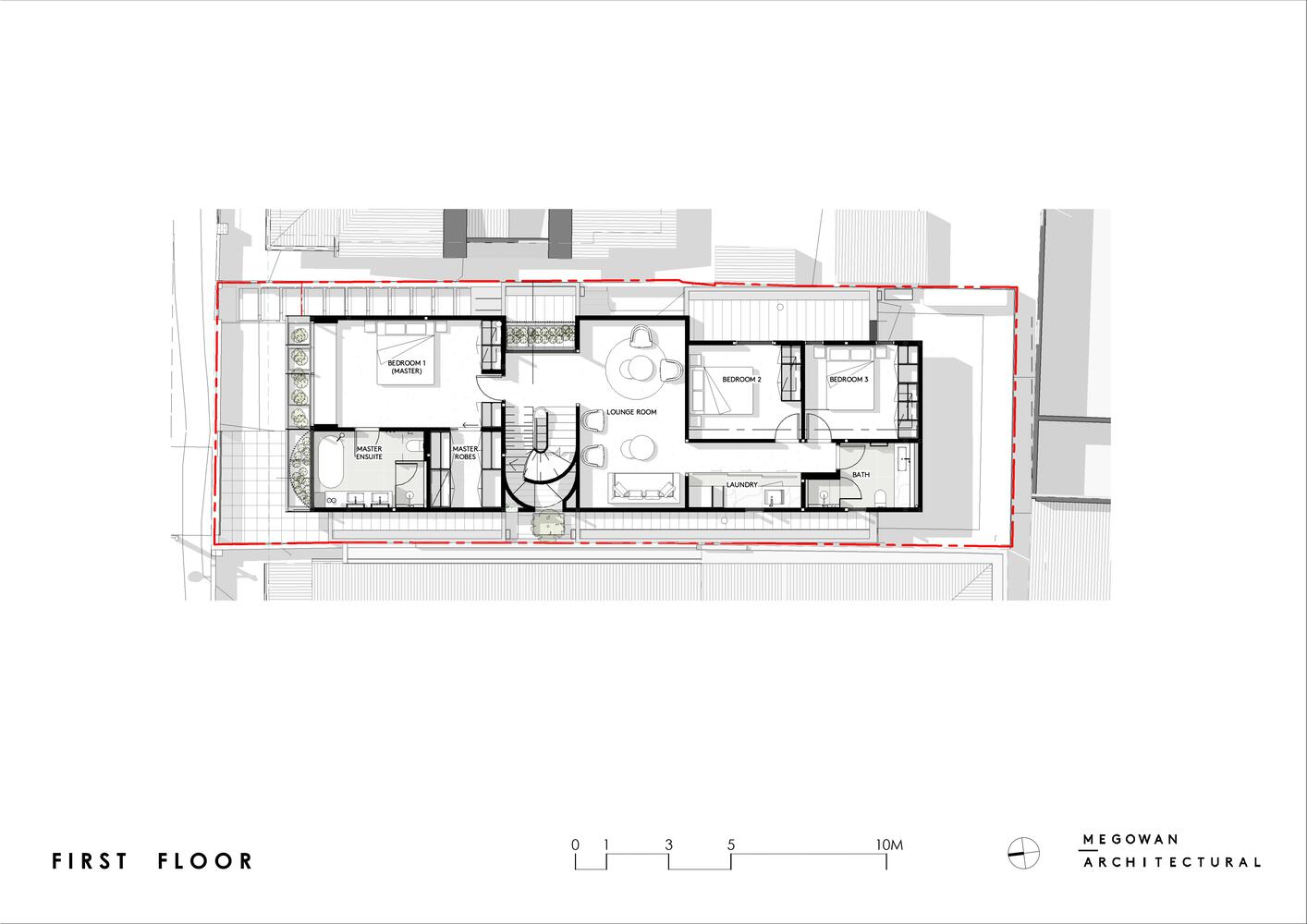
18/19 Images Megowan Architectural Designs a Sophisticated Family Home in South Yarra, Australia (18)