Upcycle House by Lendager Arkitekter
Upcycle House is an experimental project, aimed at exposing potential carbon-emission reductions through the use of recycled and upcycled building materials. In the case of Upcycle House, the reduction has been 86% compared to a benchmark house.
With increasing building performance in regards to operational energy consumption, focus has now shifted towards CO2-emissions related to construction.
Upcycling is the process of converting waste-materials or waste products into new materials or products of higher quality resulting in a reduction in production and therefore CO2-emissions.
When building houses, it is therefore environmentally beneficial to think in terms of material recycling, since the materials have already emitted CO2. It is even better to develop processes where garbage or useless materials can be upcycled and reused for new building materials of higher utility value than they had originally.
Upcycle House
Realdania Byg (a Danish foundation that promotes innovation and good practice in the building sector) has developed and constructed a single-family house with Lendager Architects called Upcycle House conveying the principles of upcycling in a tangible and clear example.
The house is built of processed recycled materials and Upcycle House investigates how much it’s actually possible to reduce the CO2 footprint by using upcycled materials to the extent possible.
The loadbearing structure consists of two prefabricated shipping containers, while the roof and facade cladding is made from recycled aluminium soda-cans. Facade panels, consist of post-consumer recycled granulated paper, which is pressed together and heat-treated. The kitchen floor is clad in tiled champagne cork-leftovers, and the bath tiles are made from recycled glass.
Walls and floors are covered with OSB-panels consisting of wood-chips that are bi-products of various production sites, pressed together without glue. The recycled materials are not very visible and the house does not radiate a recycled look – The house looks and functions like a contemporary house built of conventional materials.
The initial work on Upcycle House takes place in the workshop where window holes are cut, and the containers are fitted with plumbing and wiring for the bathroom and the kitchen. The containers only serve as the constructive frame of the house.
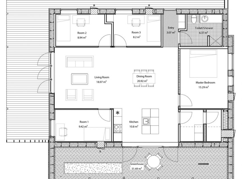
Upon arrival at the site in Nyborg, the containers are placed apart, shaping a central living space, dining space and master bedroom.
The two shipping containers are insulated on the outside, making the recycled structural framework invisible. The result is a 129 sq. meter (1390 sq. feet) house that is designed to create the optimal setting for a family’s everyday life. The house features a large living room connected to a spacious kitchen, a master bedroom, three smaller rooms, bathroom, utility room and a passive cooling chamber. In addition to this the house is also fitted with a large greenhouse adjacent to the kitchen and a large south-facing terrace.
Anders Lendager (owner of Lendager Architects) comments on the results of using recycled materials:
“We initially thought that a reduction of 65% CO2 was unrealistic, but when we ran the LCA (Life Cycle Assesment) on all materials throughout the entire project, it turned out that we had reduced the CO2 emissions associated with construction with 86%, compared to a benchmark house. With that in mind, we are surprised that no one else is working on this. Why is it not included in everything we do as architects? Why is it not included in the building code that a certain percentage of building materials have to be recycled?”
Passive sustainability
Besides the material approach, Upcycle House aims to reduce emissions through an array of sustainable features.
Due to the limited economy of the project (1,7 Mil Dkr.) a special emphasis has been put on the house’s passive properties. Therefore Upcycle House is designed with orientation, temperature zones, daylight optimization, shading and natural ventilation in mind.
This makes for a single family house with a significant reduction in emissions, that is also well within economic reach of the average family.
To illustrate the potential of this house, the team did a rough calculation:
The CO2 emission from Upcycle House is 0,7 KG CO2/M2/YR compared to 5,0 KG CO2/M2/YR for a benchmark house.
In Denmark 10.000 single family homes are built every year. With a reduction of 4,3 KG CO2/M2/YR and an average floor area well over 130 sq. meter this makes for a potential reduction of 5590 tons of CO2 – per year.
Photos by: Lendager Arkitekter & Jesper Ray
View more: An Elegant Waterfront Home with Warm and Welcoming Interiors in Seattle
Related: A Stunning Contemporary Home with Stylish Industrial Interiors in Alexandria
Here: A Modest Single-Family House Made of Recycled Materials in Dallas
Read also: A Stylish Modern House Surrounded by Plants and Nature on the Hill in Lima
Next: A Playful and Colorful House Designed for Fun and Parties in São Paulo
Check out: A Stunning Coastal Home with Panoramic Sea Views in Williamstown
Read more: A Small Modern Home for a Young Family in the Forest Environment of Ottawa, Canada












