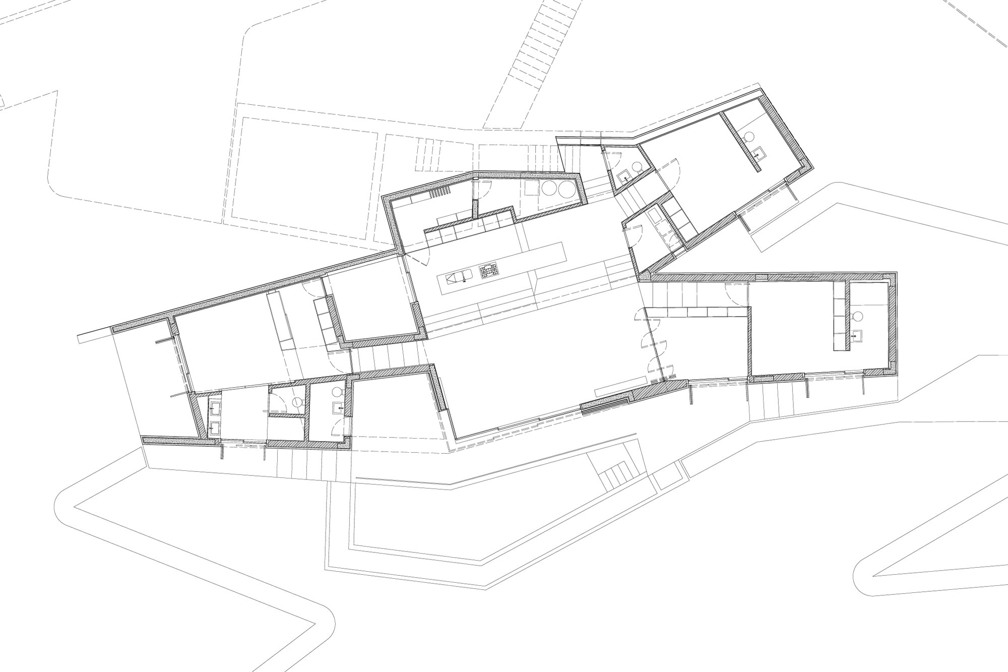
28/34 Images A Contemporary Zigzag-Shaped House Surrounded by Vineyards and Olive Trees in Gateira, Portugal by Camarim Arquitectos (28)