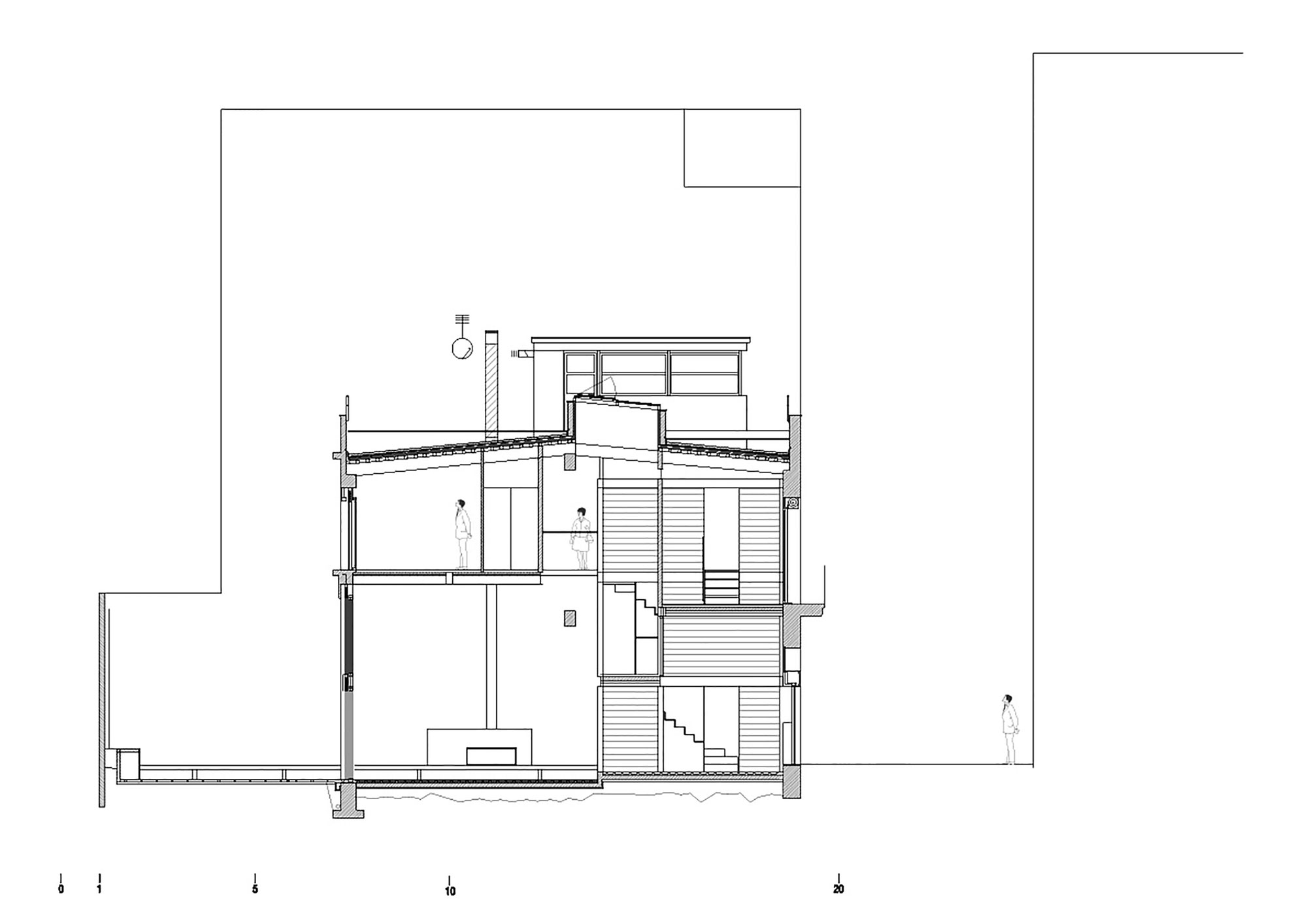
A Former Milk Shop Turned into a Bright Modern Industrial Home in Barcelona

A Former Milk Shop Turned into a Bright Modern Industrial Home in Barcelona by Lluís Corbella & Marc Mazeres (20)
20/20 Images