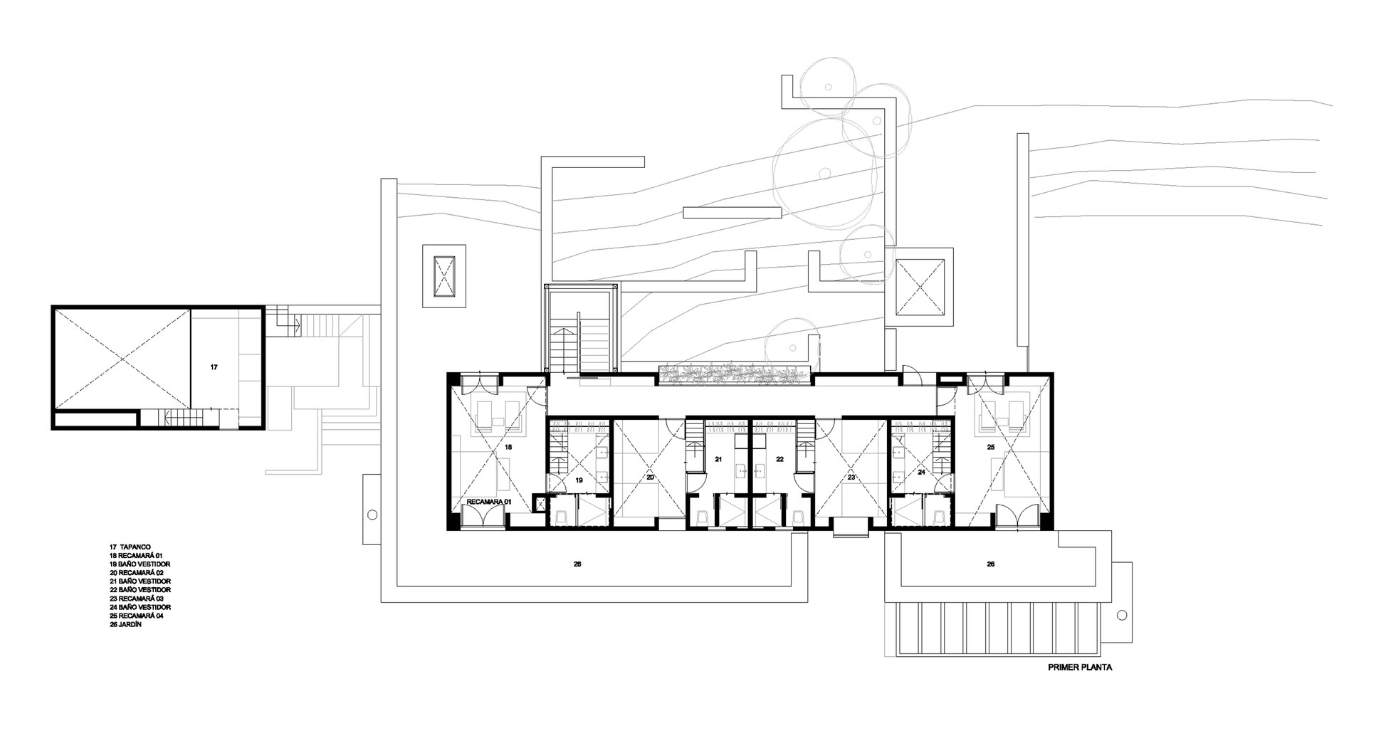
15/20 Images A Spacious Home with a Modern Take of Traditional Elements in the Forest of Tapalpa, Mexico by Andrés Escobar Taller Arquitectónica (16)