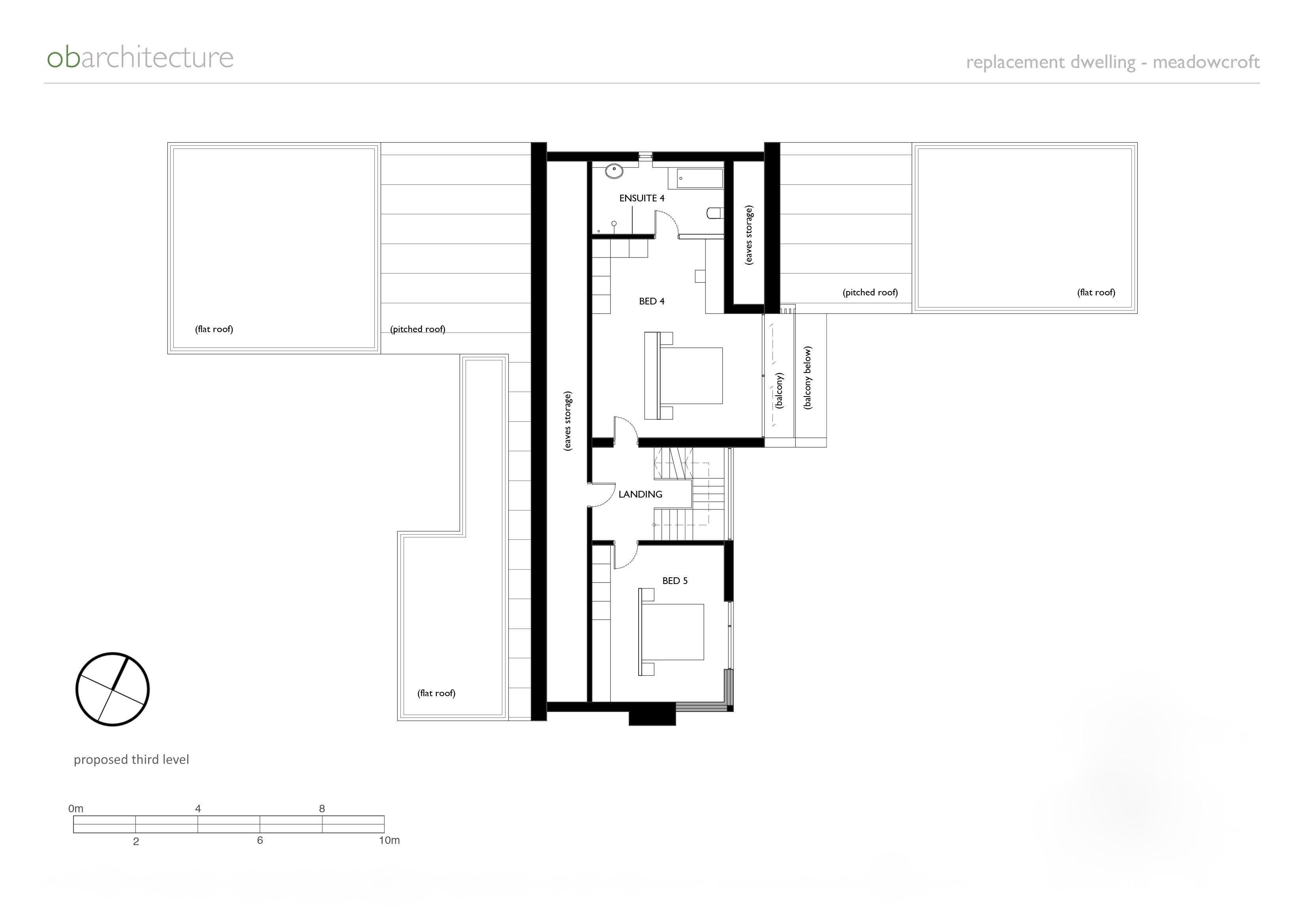
18/28 Images A Luminous Contemporary Home with Pitched Roof and Large Chimney in Hampshire by OB Architecture (18)