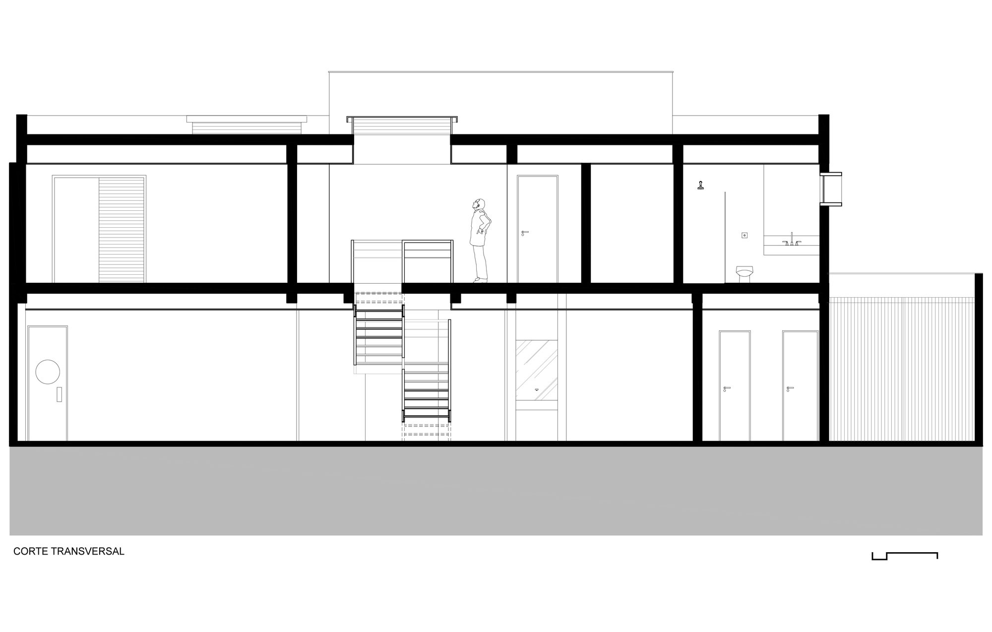
19/20 Images A Stylish Contemporary Home with Simple Lines and Overlapping Volumes in Brasilia by Patricia Almeida Arquitetura (19)