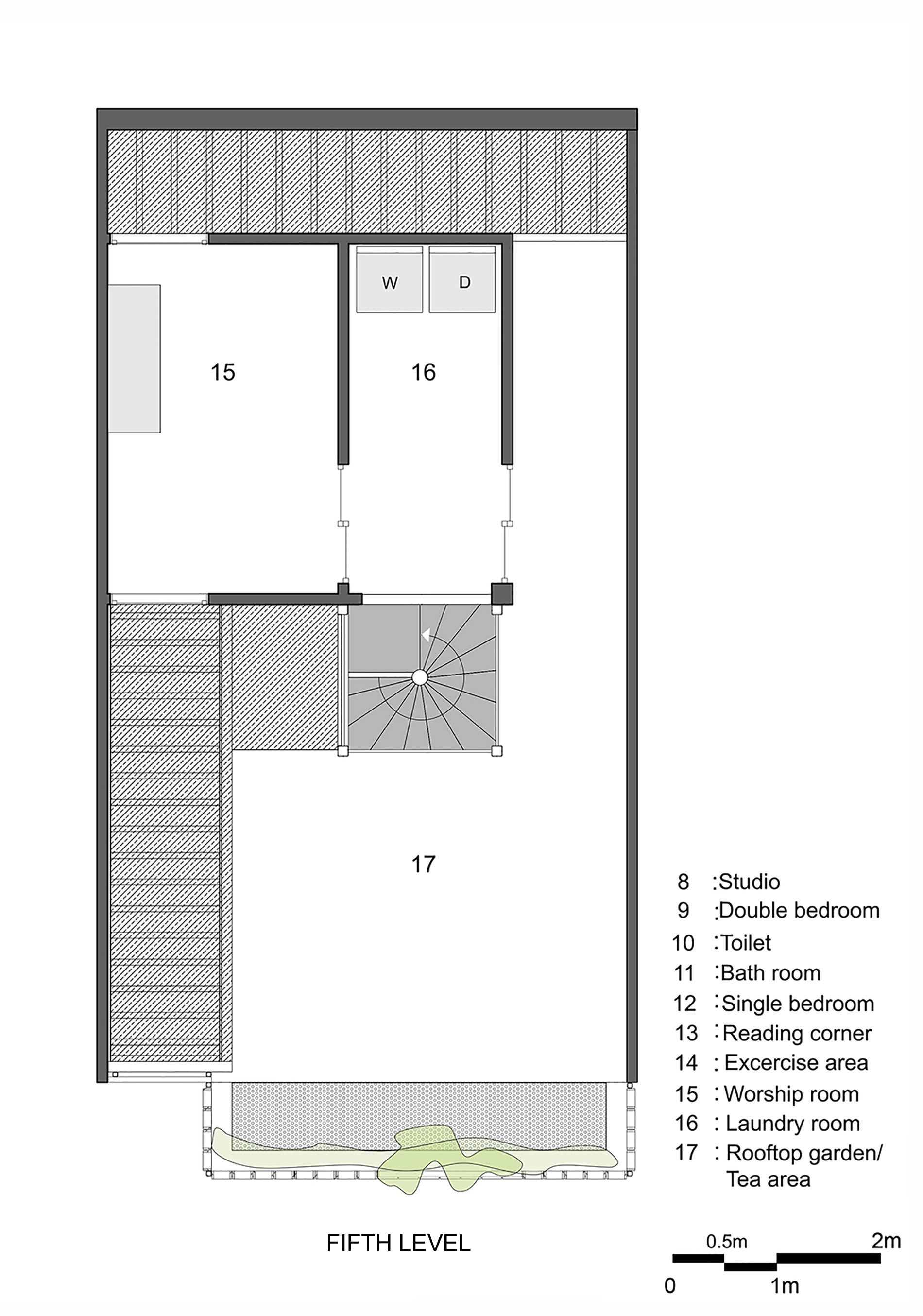
21/22 Images A Cozy and Comfortable Vertical Home for a Family of Four in Ho Chi Minh, Vietnam by Studio8 Vietnam (21)