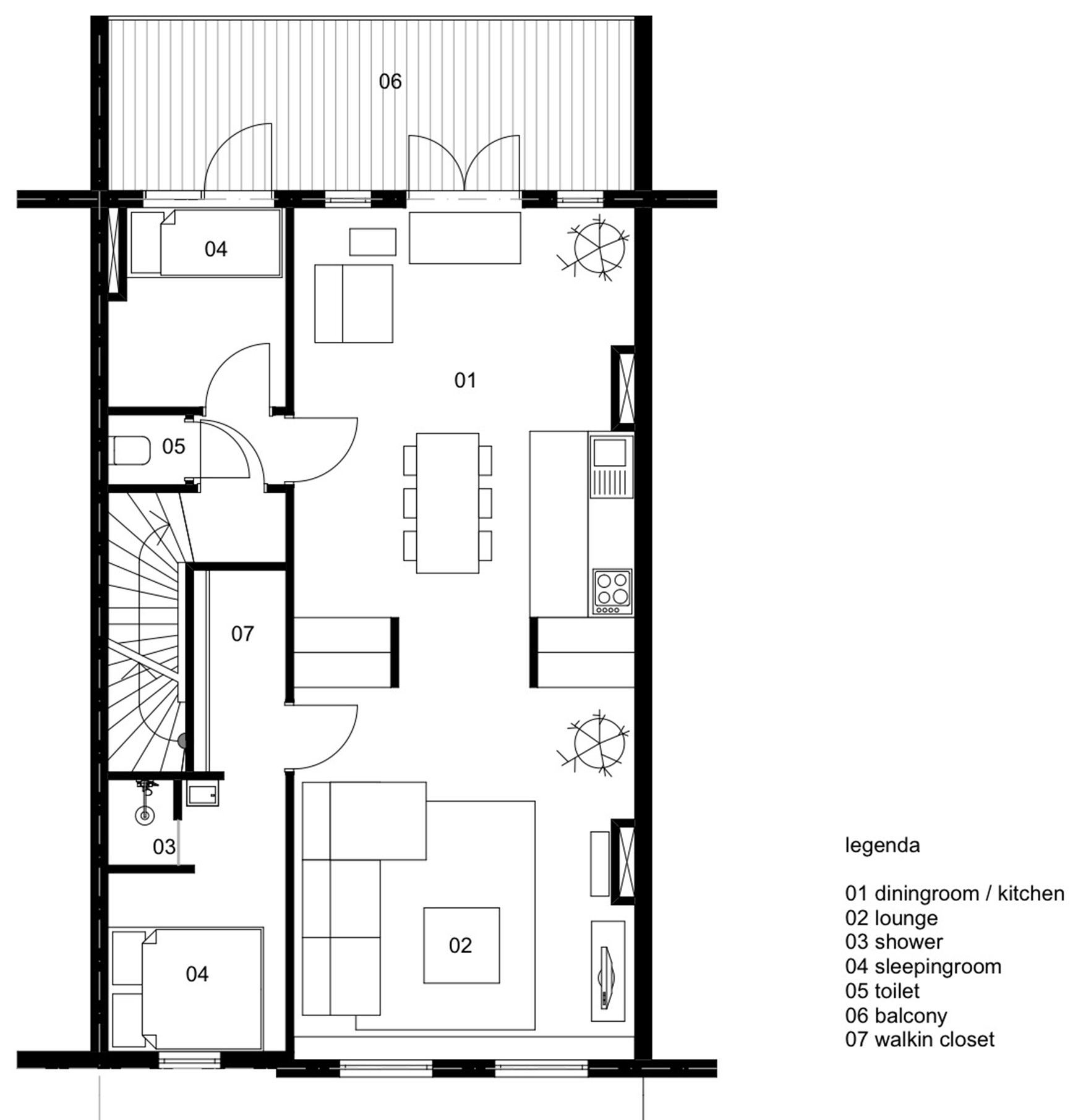
11/11 Images A Comfortable Home with Contemporary High-Tech and Industrial Features in The Netherlands by Global Architects (11)