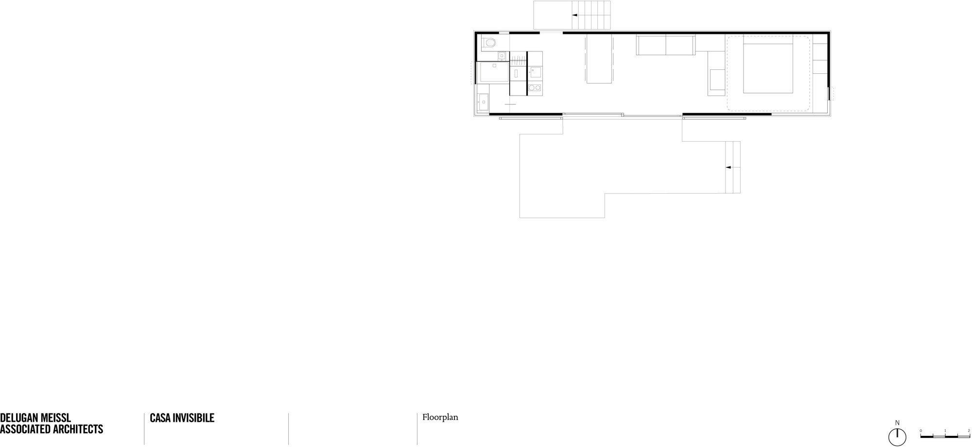
23/25 Images A Unique Contemporary House with Simple Elegant Interiors in Austria by Delugan Meissl Associated Architects (23)