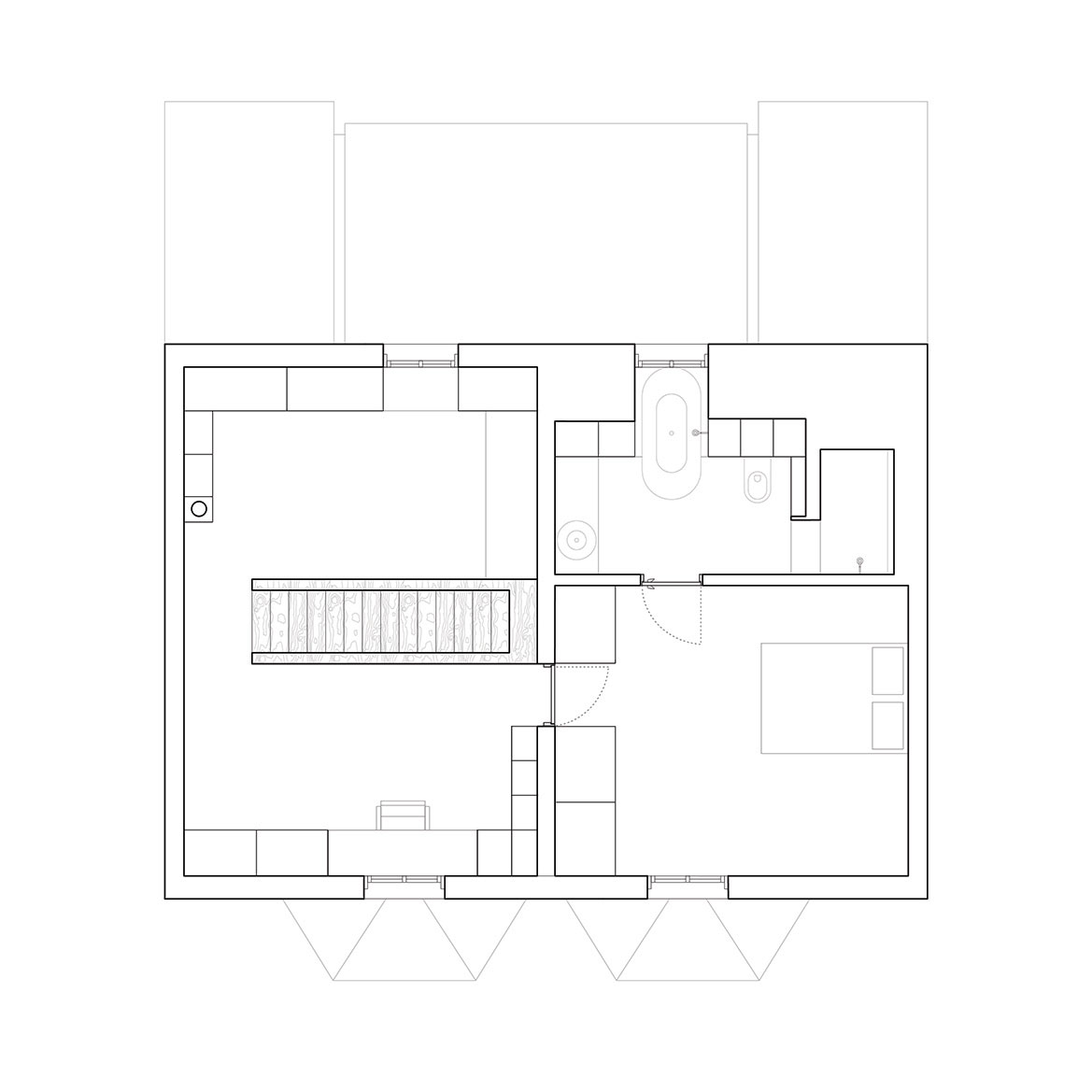
A Two Semi-Detached Houses Converted into One Family Home in Oxford

A Two Semi-Detached Houses Converted into One Family Home in Oxford by Delvendahl Martin Architects (19)
19/23 Images